Vuokrataan toimistotilat, liiketilat - Kuopio
Torikatu 5, 70110 Kuopio #10853083
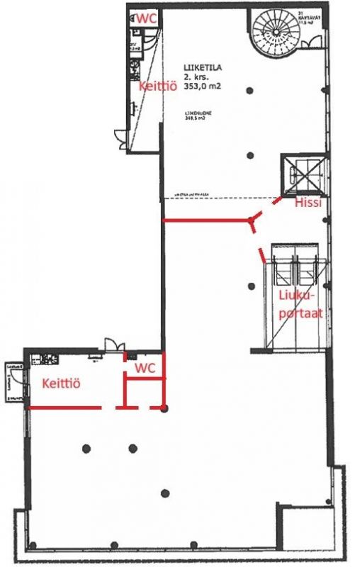
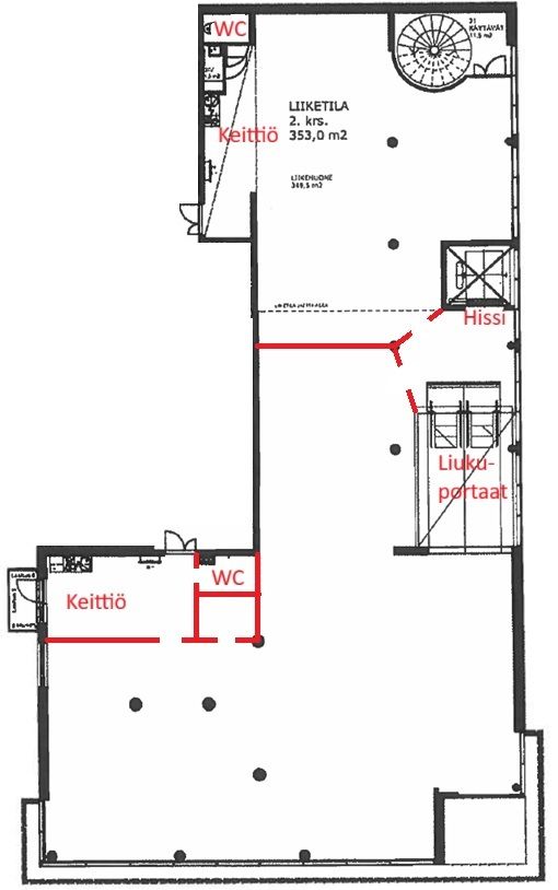
Mualiman navalta eli Kuopion torilta alle 100 metrin etäisyydellä sijaitseva siisti toisen kerroksen toimisto- tai liikekokonaisuus nyt tarjolla vuokrattavaksi.
Kohde sijaitsee aivan Sokoksen kongin sisäänkäynnin vieressä, josta kulkee päivittäin runsaasti ihmisiä. Katutasossa isot näyteikkunat Torikadun ja Ajurinkadun suuntaan.
Tiloissa kaksi keittiötä ja wc:tä. Oma pieni parveke toisen keittiön yhteydessä.
Kulku 2. kerrokseen liukuportailla, hissillä tai rappusia. Sisäänkäynti rappukäytävän tai alakerroksen liiketilan kautta.
Kysy lisätietoja ja tarkempaa esitettä kohteesta!
Toriparkissa vuokrattavissa autopaikkoja, kulku parkkiin helposti Sokoksen kautta. Toriparkissa myös sähköautojen latauspaikka K2-tasolla.
Näkyvällä paikalla
Hissi
Suomen Toimitila-asiantuntijat Oy
Vuorikatu 26 A, 70100 KUOPIO
Näytä puhelinnumero
044 3636 199
Alli Muhojoki
