Vuokrataan liiketilat - Helsinki
Kampin Huippu, Annankatu 34, Kamppi, 00100 Helsinki #10853078
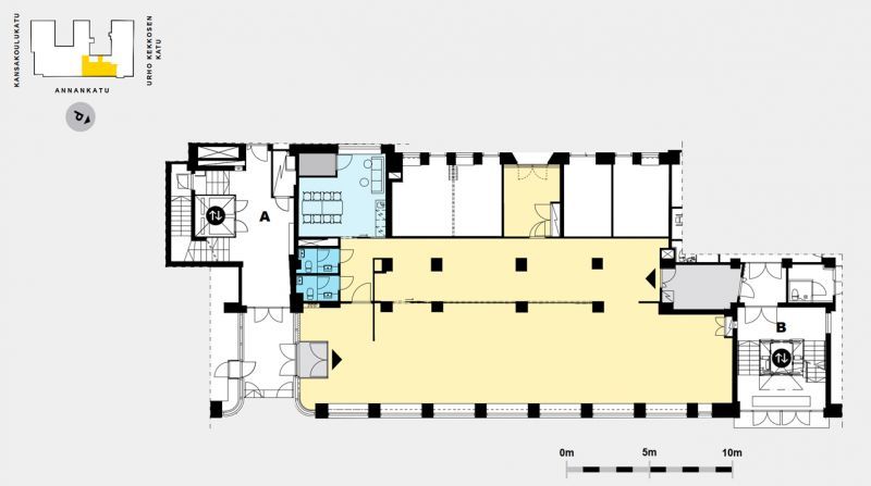
Katutason 291 m² liiketila keskeisellä sijainnilla Kampissa.
Osoite
Annankatu 34, 00100 Helsinki
Tilatyyppi
Liiketilaa
291 m2
Pohjapiirros
Kiinteistö
Liiketila, joka koostuu avotilasta, taukotilasta sekä toimistotilasta. Tilaan sisäänkäynti Annankadulta, erittäin näkyvässä paikassa. Tilaan on esteetön kulku. Erinomaisella liikepaikalla kaiken keskellä.
Ilmoituksen kuvat ovat yleiskuvia kiinteistön eri tiloista.
Kampin Huippu on valinta, kun haluat modernit tilat Helsingin ydinkeskustan keskipisteestä. Täältä on lyhyt matka kaikkialle. Kiinteistössä on kattavat aula-, ravintola- ja kokouspalvelut. Sisätilat on uusittu nykyajan vaatimuksia vastaaviksi. Tilojen muunneltavuus mahdollistaa monipuolisen toimintaympäristön erilaisten yritysten tarpeisiin.
Tila ei sovellu ravintola-, baari- tai kahvilakäyttöön eikä parturi-kampaamoksi.
Ilmoituksen kuvat ovat yleiskuvia kiinteistön eri tiloista.
Kampin Huippu on valinta, kun haluat modernit tilat Helsingin ydinkeskustan keskipisteestä. Täältä on lyhyt matka kaikkialle. Kiinteistössä on kattavat aula-, ravintola- ja kokouspalvelut. Sisätilat on uusittu nykyajan vaatimuksia vastaaviksi. Tilojen muunneltavuus mahdollistaa monipuolisen toimintaympäristön erilaisten yritysten tarpeisiin.
Tila ei sovellu ravintola-, baari- tai kahvilakäyttöön eikä parturi-kampaamoksi.
Kulkuyhteydet
Metroasema 200 m, Raitiovaunupysäkki 100 m, Bussipysäkki 100 m, Juna-asema 700 m, Lentoasema 19,8 km
Vapautuu
Heti
Rakennusvuosi
1956
Saneerausvuosi
2012
Kerros
1 / 8
Energiatehokkuusluokka
Ei lain edellyttämää energiatodistusta
Katutasossa
Näkyvällä paikalla
Hissi
Ota yhteyttä
ScanReal Oy LKV
Opus Business Park
Hitsaajankatu 24
00810 Helsinki
info@scanreal.fi
Puh:
Näytä puhelinnumero
020 730 8830
Sopivat toimitilat yhdellä otolla!
Kartoitamme toimitilatarpeesi ja etsimme yrityksellesi parhaiten sopivat vapaat toimitilat. Koska vuokranantajat maksavat palvelumme, on tämä yrityksellesi veloituksetonta.
OTA YHTEYTTÄ - SOVI NÄYTTÖ!
Kaikki kohteemme eivät ole netissä, kerro tilatarpeesi niin kartoitamme vaihtoehdot.
Palvelumme on tilanhakijalle ilmainen
Pyydä lisätietoa
