Vuokrataan toimistotilat - Helsinki
Erottajankatu 19, Keskusta, 00130 Helsinki #10853075
Rauhallinen ja inspiroiva 3. kerroksen 82 m² toimisto ydinkeskustan vilinässä, Erottajalla.
Osoite
Erottajankatu 19, 00130 Helsinki
Tilatyyppi
Toimistotilaa
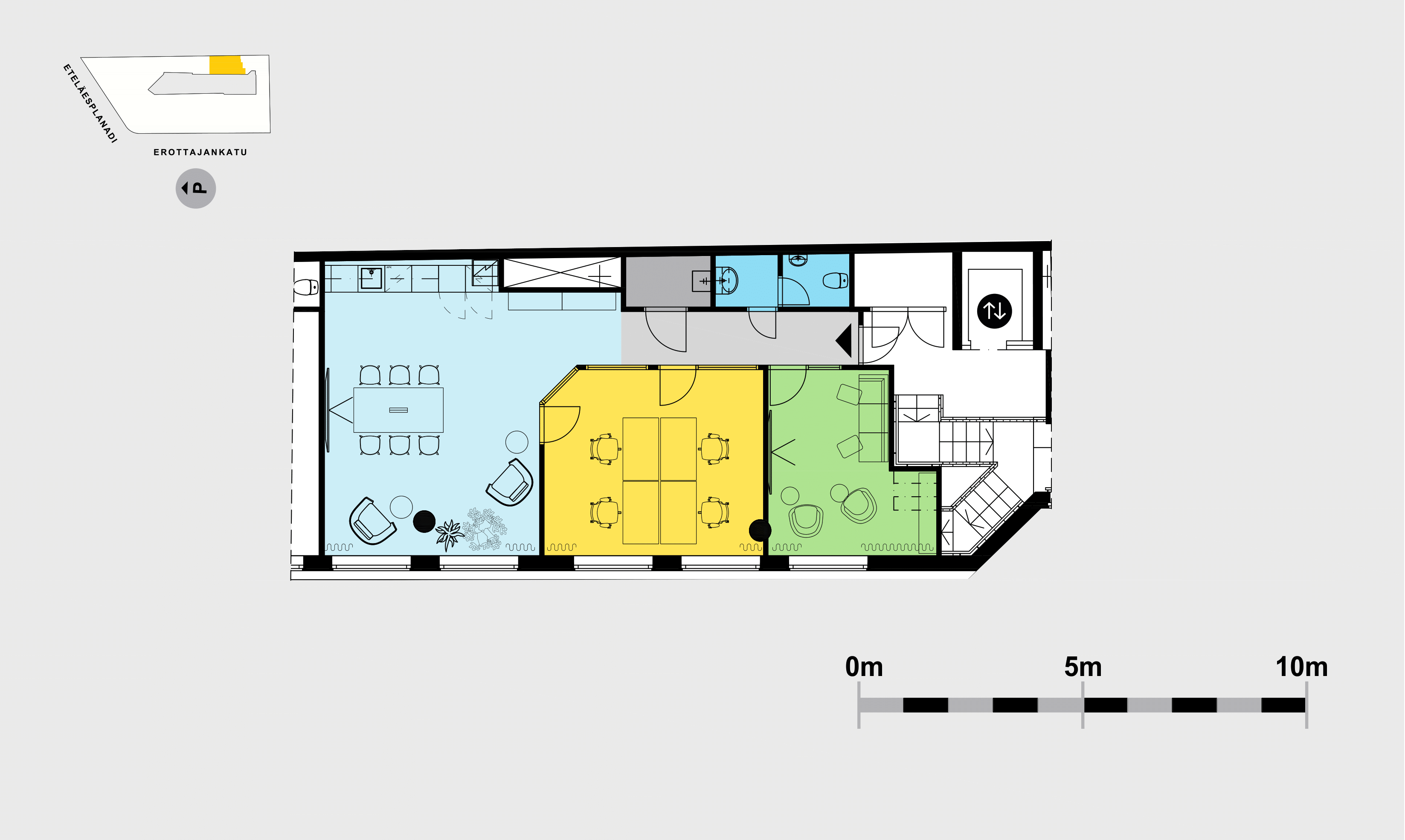
82 m2
Pohjapiirros
Kiinteistö
Tässä toimistossa avotilaa, yksi toimistohuone sekä neuvottelutila; ikkunoista avautuu näkymä vehreälle sisäpihalle. Tila on sisäpihalta katsottuna 3. kerroksessa, ja sisäänkäynti on Eteläesplanadi 24:n puolelta.
Tyylikästä ja edustavaa toimitilaa näyttävällä paikalla, yhdessä ydinkeskustan arvostetuimmista kortteleista. Helsingin keskustan kolmen pääakselin risteyksessä sijaitseva arvokiinteistö on maamerkki, jonka useimmat tuntevat. Vuonna 1893 valmistunut Erottajankulma on täynnä koristeellisia ja pysäyttäviä yksityiskohtia. Tervetuloa menestymään ydinkeskustan risteyspaikalle.
Erottajankulma hurmaa kauneudellaan kerta toisensa jälkeen. Arkkitehti Theodor Höjerin piirtämä kohde suunniteltiin palatsimaiseksi asuin- ja liikerakennukseksi. Edustava kiinteistö on täynnä koristeellisia ja pysäyttäviä yksityiskohtia. Porraskäytävän katto- ja seinämaalaukset luovat juhlan tunnun jokaiseen työpäivään. Erottajankulma kuuluu Esplanadin ja Bulevardin muodostamaan valtakunnallisesti merkittävään kulttuuriympäristökokonaisuuteen.
Rakennuksen porrasaulat ja julkisivut on kunnostettu alkuperäistä asuaan kunnioittaen. Kiinteistössä on nykyaikaista talotekniikkaa, mm. jäähdytetty ilmanvaihto. Myös toimistotiloja on uudistettu asiakkaiden tilatarpeita vastaavasti. Kiinteistön viihtyisä sisäpiha on vastikään uudistettu. Kiinteistössä sijaitsee toimitiloja, liiketiloja ja ravintola.
Erottajankulma sijaitsee Helsingin keskustan kolmen pääakselin – Mannerheimintien, Esplanadin ja Bulevardin - risteyksessä. Se on keskustan läpikulkevan Mannerheimintien visuaalinen päätepiste. Erottajankulmassa olet keskellä kaikkea. Julkisten liikennevälineiden pysäkit sijaitsevat puolen kilometrin säteellä ja keskustan palvelut parin minuutin kävelymatkan päässä. Autoilijoita varten kiinteistössä on oma parkkihalli. Lisäksi ympäristössä sijaitsee useita keskustan pysäköintilaitoksia.
Ilmoituksen valokuvat ovat mallikuvia kiinteistön eri tiloista.
Tyylikästä ja edustavaa toimitilaa näyttävällä paikalla, yhdessä ydinkeskustan arvostetuimmista kortteleista. Helsingin keskustan kolmen pääakselin risteyksessä sijaitseva arvokiinteistö on maamerkki, jonka useimmat tuntevat. Vuonna 1893 valmistunut Erottajankulma on täynnä koristeellisia ja pysäyttäviä yksityiskohtia. Tervetuloa menestymään ydinkeskustan risteyspaikalle.
Erottajankulma hurmaa kauneudellaan kerta toisensa jälkeen. Arkkitehti Theodor Höjerin piirtämä kohde suunniteltiin palatsimaiseksi asuin- ja liikerakennukseksi. Edustava kiinteistö on täynnä koristeellisia ja pysäyttäviä yksityiskohtia. Porraskäytävän katto- ja seinämaalaukset luovat juhlan tunnun jokaiseen työpäivään. Erottajankulma kuuluu Esplanadin ja Bulevardin muodostamaan valtakunnallisesti merkittävään kulttuuriympäristökokonaisuuteen.
Rakennuksen porrasaulat ja julkisivut on kunnostettu alkuperäistä asuaan kunnioittaen. Kiinteistössä on nykyaikaista talotekniikkaa, mm. jäähdytetty ilmanvaihto. Myös toimistotiloja on uudistettu asiakkaiden tilatarpeita vastaavasti. Kiinteistön viihtyisä sisäpiha on vastikään uudistettu. Kiinteistössä sijaitsee toimitiloja, liiketiloja ja ravintola.
Erottajankulma sijaitsee Helsingin keskustan kolmen pääakselin – Mannerheimintien, Esplanadin ja Bulevardin - risteyksessä. Se on keskustan läpikulkevan Mannerheimintien visuaalinen päätepiste. Erottajankulmassa olet keskellä kaikkea. Julkisten liikennevälineiden pysäkit sijaitsevat puolen kilometrin säteellä ja keskustan palvelut parin minuutin kävelymatkan päässä. Autoilijoita varten kiinteistössä on oma parkkihalli. Lisäksi ympäristössä sijaitsee useita keskustan pysäköintilaitoksia.
Ilmoituksen valokuvat ovat mallikuvia kiinteistön eri tiloista.
Vapautuu
Heti
Rakennusvuosi
1893
Kerros
3 / 6
Energiatehokkuusluokka
F2007
Näkyvällä paikalla
Hissi
Ota yhteyttä
ScanReal Oy LKV
Opus Business Park
Hitsaajankatu 24
00810 Helsinki
info@scanreal.fi
Puh:
Näytä puhelinnumero
020 730 8830
Sopivat toimitilat yhdellä otolla!
Kartoitamme toimitilatarpeesi ja etsimme yrityksellesi parhaiten sopivat vapaat toimitilat. Koska vuokranantajat maksavat palvelumme, on tämä yrityksellesi veloituksetonta.
OTA YHTEYTTÄ - SOVI NÄYTTÖ!
Kaikki kohteemme eivät ole netissä, kerro tilatarpeesi niin kartoitamme vaihtoehdot.
Palvelumme on tilanhakijalle ilmainen
Pyydä lisätietoa
