Vuokrataan toimistotilat, liiketilat - Kuopio
Torikatu 5, 70110 Kuopio #10853070
Mualiman navalta eli Kuopion torilta alle 100 metrin etäisyydellä sijaitseva siisti liike- tai toimistokokonaisuus nyt tarjolla vuokrattavaksi. Kohde sijaitsee aivan Sokoksen kongin sisäänkäynnin vieressä, josta kulkee päivittäin runsaasti ihmisiä. Katutasossa isot näyteikkunat Torikadun ja Ajurinkadun suuntaan.
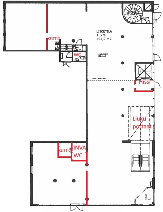
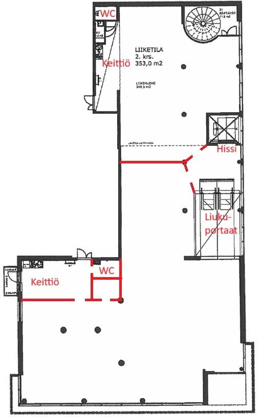
Kohteessa yhteensä 4 keittiötä ja wc:tä (kutakin 2 alakerrassa, 2 yläkerrassa). Tiloissa joitain kevyitä väliseiniä, pääosin avointa tilaa. Kellarikerroksessa lisäksi sosiaalitiloja (wc, suihku).
Kulku 2. kerrokseen liukuportailla, hissillä tai rappusia. Useampi ulko-ovi ja sisäänkäyntimahdollisuuus myös rappukäytävän kautta.
Kysy lisätietoja ja tarkempaa esitettä kohteesta!
Toriparkissa vuokrattavissa autopaikkoja, kulku parkkiin helposti Sokoksen kautta. Toriparkissa myös sähköautojen latauspaikka K2-tasolla.
Katutasossa
Näkyvällä paikalla
Jaettavissa
Hissi
Suomen Toimitila-asiantuntijat Oy
Vuorikatu 26 A, 70100 KUOPIO
Näytä puhelinnumero
044 3636 199
Alli Muhojoki
