Vuokrataan tuotantotilat, varastotilat - Raisio
Kuninkaanväylä 20, Kuninkoja, 21280 Raisio #10853067
Varastotilaa Raisiosta
Osoite
Kuninkaanväylä 20, 21280 Raisio
Tilatyyppi
Tuotantotilaa
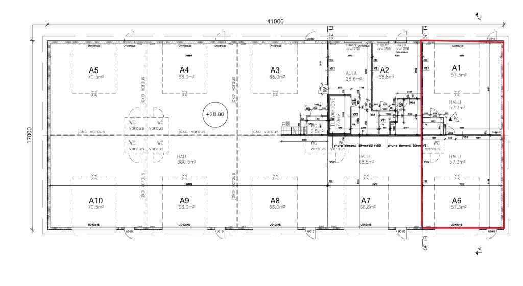
114,6 m2
Varastotilaa
114,6 m2
Yhteensä
114,6 m2
Vuokra
1375.2 e
Muuta
Vuokrattavana 114,6 m² varastotilaa Raision Kuninkojalta. Tila sijaitsee rakennuksen toisessa päädyssä ja tarjoaa helposti saavutettavan sijainnin lähellä vilkkaita liikenneyhteyksiä.
Varastotilassa on nosto-ovet, jotka mahdollistavat sujuvan tavarankäsittelyn.
Tilassa A1 on myös oma wc, mikä lisää käyttömukavuutta.
Tilan vapaa korkeus on noin. 5m. Nosto-ovi noin 4-4,5m korkea.
Erinomainen sijainti Raision keskeisellä alueella tukee tehokasta logistiikkaa ja tekee tilasta toimivan ratkaisun monenlaiseen varastointiin tai pienimuotoiseen tuotantoon.
Tervetuloa tutustumaan, varaathan välittäjältä oman esittelyaikasi. Voit kysyä meiltä myös muita sopivia vaihtoehtoja, kauttamme löydät juuri Teidän tarpeisiinne sopivat tilat. Palvelumme on tilanhakijalle veloitukseton!
Varastotilassa on nosto-ovet, jotka mahdollistavat sujuvan tavarankäsittelyn.
Tilassa A1 on myös oma wc, mikä lisää käyttömukavuutta.
Tilan vapaa korkeus on noin. 5m. Nosto-ovi noin 4-4,5m korkea.
Erinomainen sijainti Raision keskeisellä alueella tukee tehokasta logistiikkaa ja tekee tilasta toimivan ratkaisun monenlaiseen varastointiin tai pienimuotoiseen tuotantoon.
Tervetuloa tutustumaan, varaathan välittäjältä oman esittelyaikasi. Voit kysyä meiltä myös muita sopivia vaihtoehtoja, kauttamme löydät juuri Teidän tarpeisiinne sopivat tilat. Palvelumme on tilanhakijalle veloitukseton!
Vapautuu
Kysy
Kerros
katutaso
Ota yhteyttä
Tuloskiinteistöt Oy
Kauppiaskatu 11 C 23, 20100 Turku
Näytä puhelinnumero
(02) 274 3500
Ritva Nuotio
Commercial Real Estate Advisor LKV, KED
Näytä puhelinnumero
+358 50 5261 744
Karoliina Eklund
Leasing Support Specialist
Näytä puhelinnumero
+358 40 017 8999
Pyydä lisätietoa
