Vuokrataan toimistotilat - Helsinki
Alvar Aallon katu 3, Keskusta, 00100 Helsinki #10853053
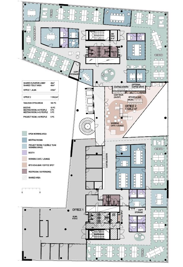
Vuokrattavana pääkonttoritasoista, modernia ja valoisaa toimistotilaa.
Osoite
Alvar Aallon katu 3, 00100 Helsinki
Tilatyyppi
Toimistotilaa
1535 m2
Tilajako
Jaettavissa
noin 600 m2/ 900 m2
Kiinteistö
Vuokrattavana pääkonttoritasoista, modernia ja valoisaa toimistotilaa. Tilasta on loistavat näkymät Töölönlahdelle ja Kaisaniemenlahdelle. Tilat voidaan muokata joustavasti yrityksesi tarpeiden mukaan.
Sijainti
Keskusta, Helsinki
Pysäköinti
Kiinteistön pysäköintihallista on vuokrattavissa autopaikkoja.
Palvelut
-Aulapalvelu
-Henkilöstöravintola
-Auditorio
-Neuvottelutilat
-Henkilöstöravintola
-Auditorio
-Neuvottelutilat
Kulkuyhteydet
-Metro
-Raitiovaunu
-Bussi
-Lähijuna
-Raitiovaunu
-Bussi
-Lähijuna
Vapautuu
Heti
Kerros
1-6
Energiatehokkuusluokka
Ei lain edellyttämää energiatodistusta
Näkyvällä paikalla
Jaettavissa
Hissi
Ota yhteyttä
REALIUM OY LKV
Tammasaarenkatu 1, 00180 Helsinki
Vaihde:
Näytä puhelinnumero
010 326 346
Tuomo Mäkelä
tuomo.makela@realium.fi
p.
Näytä puhelinnumero
044 050 1158
Joel Keto
joel.keto@realium.fi
p.
Näytä puhelinnumero
045 317 0330
KAIKKI TILAVAIHTOEHDOT KERRALLA!
SOITA - MEILAA JA TILAA NÄYTTÖ!
Ilmainen palvelu tilanhakijoille.
Kartoitamme parhaat tilavaihtoehdot.
Kaikki kohteet eivät ole netissä.
Pyydä lisätietoa
