Vuokrataan toimistotilat - Tampere
Biokatu 10, Tampere, Suomi, Kauppi, 33520 Tampere #10853041
Tampereen Gamma sijaitsee Kaupin kampusalueella, vain 10 minuutin ratikkamatkan päässä Tampereen keskustasta.
Osoite
Biokatu 10, Tampere, Suomi, 33520 Tampere
Tilatyyppi
Toimistotilaa
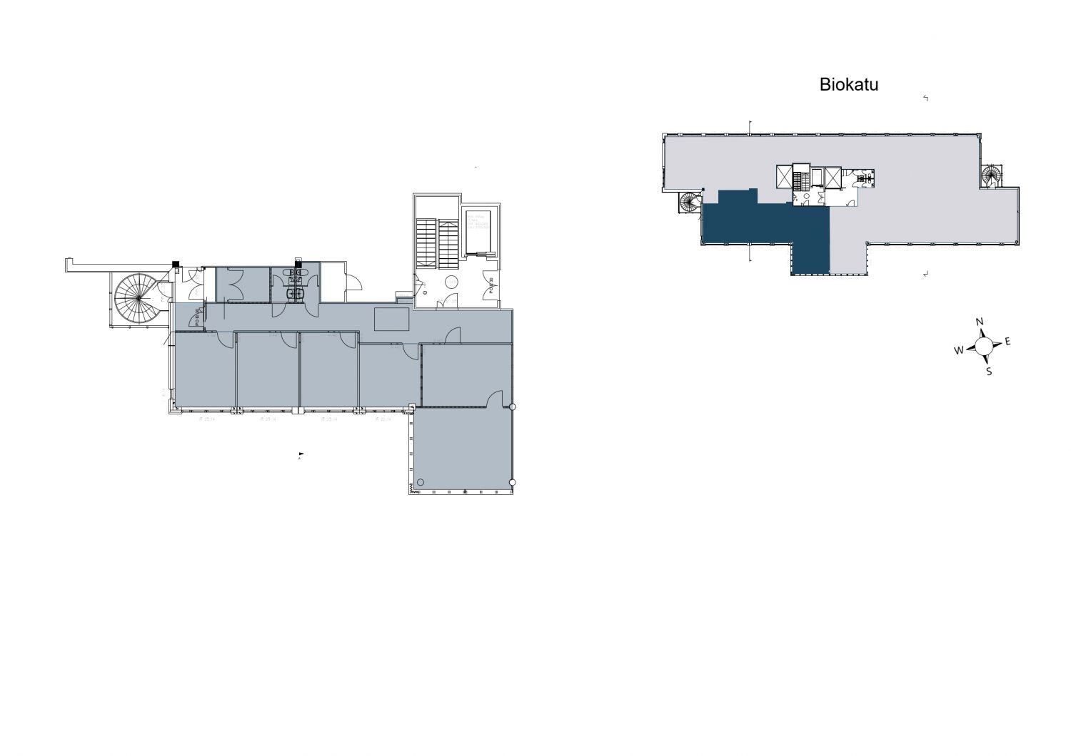
159 m2
Kiinteistö
Gamma - Biokatu 10
Ympäristö
Juna-asema: 3,2 km, Lentoasema: 21,6 km
Muuta
Monipuolinen 7. kerroksen toimistotila tila, joka vapautuu 1.7.2026
Tila on mahdollista remontoida yrityksesi tarpeiden mukaisesti.
Toimitilakiinteistö Gamma sijaitsee Kaupin kampusalueella, aivan Tampereen yliopistollisen sairaalan sekä alueen pääliikenneväylien läheisyydessä.
Tampereen Gamma sijaitsee Kaupin kampusalueella, vain 10 minuutin ratikkamatkan päässä Tampereen keskustasta.
Tila on mahdollista remontoida yrityksesi tarpeiden mukaisesti.
Toimitilakiinteistö Gamma sijaitsee Kaupin kampusalueella, aivan Tampereen yliopistollisen sairaalan sekä alueen pääliikenneväylien läheisyydessä.
Tampereen Gamma sijaitsee Kaupin kampusalueella, vain 10 minuutin ratikkamatkan päässä Tampereen keskustasta.
Vapautuu
Kysy
Rakennusvuosi
2001
Kerros
7
Energiatehokkuusluokka
F2007
Ota yhteyttä
LähiTapiola Kiinteistövarainhoito Oy
Anne-Mari Ijäs
Vuokrauspäällikkö
Näytä puhelinnumero
040 415 4137
Pyydä lisätietoa
