Vuokrataan tuotantotilat, varastotilat - Helsinki
Malminkartanonkuja 2, Konala, 00390 Helsinki #10853030
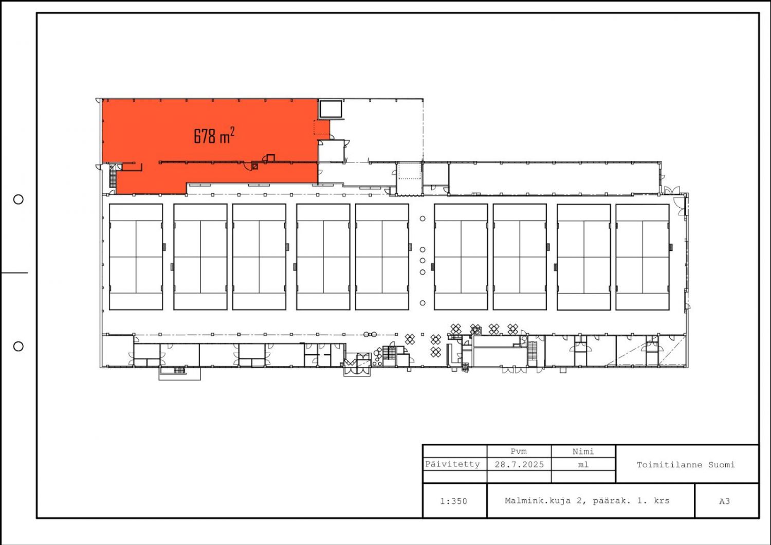
Vuokrataan 678 m² lämmin tuotanto-/varastotila rakennuksen ensimmäisestä kerroksesta. Tilan korkeus kattopalkin alareunaan 3,8-3,96 m ja kapeassa osassa 3 m. Nosto-ovi, ajoaukon leveys 2,5 m ja korkeus 3,1 m. Tilassa on voimavirta ja led-valaistus. Tilan ulkopuolella on reilun kokoinen katostila, jota voi käyttää lastaus- ja purkualueena.
Kiinteistö sijaitsee Vihdintien ja Kehä I tuntumassa. Pihalla on hyvin paikoitustilaa. Konalan ja Malminkartanon palvelut ovat lähistöllä.
Kysy rohkeasti lisätietoja ja sovitaan käynti kohteella!
Hausala Oy
Erkkilänkatu 11, 33100 Tampere
Näytä puhelinnumero
050 472 7077
Mika Savikko
Näytä puhelinnumero
050 472 7077
Mikko Ranta
Näytä puhelinnumero
050 360 6500
