Vuokrataan toimistotilat - Helsinki
Kalasataman Kummeli, Vilhonvuorenkatu 12, Kalasatama, 00500 Helsinki #10853004
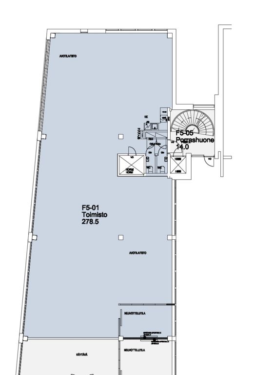
Tasokasta 278,5 m² toimistoa keskeisellä paikalla Kalasatamassa Business Park -ympäristössä.
Osoite
Vilhonvuorenkatu 12, 00500 Helsinki
Tilatyyppi
Toimistotilaa
278,5 m2
Pohjapiirros
Kiinteistö
Muuttovalmis ja helposti asiakkaan tarpeen mukaan muokattavissakin oleva tila täyden palvelun talon päädystä
Kalasataman Kummeli Business Park palvelee erilaisten asiakkaiden tarpeita joustavasti. Erinomainen sijainti Sörnäisten, Kalasataman ja Suvilahden keskiössä, metro ja REDI ovat kävelymatkan päässä.
Ilmoituksen kuvat ovat yleiskuvia kiinteistön eri tiloista.
Kalasataman Kummeli Business Park palvelee erilaisten asiakkaiden tarpeita joustavasti. Erinomainen sijainti Sörnäisten, Kalasataman ja Suvilahden keskiössä, metro ja REDI ovat kävelymatkan päässä.
Ilmoituksen kuvat ovat yleiskuvia kiinteistön eri tiloista.
Palvelut
Alueella monipuoliset palvelut
Kulkuyhteydet
Bussipysäkki 100 m, Metro Sörnäinen 350 m, Metro Kalasatama 700 m, Raitiovaunu 400 m, Helsingin keskusta 3 km, Pasilan juna-asema 3 km, Lentokenttä 18 km
Muuta
Ei lain edellyttämää energiatodistusta
Vapautuu
Heti
Rakennusvuosi
1993
Saneerausvuosi
2015
Kerros
4 / 6
Energiatehokkuusluokka
B
Näkyvällä paikalla
Hissi
Ota yhteyttä
ScanReal Oy LKV
Opus Business Park
Hitsaajankatu 24
00810 Helsinki
info@scanreal.fi
Puh:
Näytä puhelinnumero
020 730 8830
Sopivat toimitilat yhdellä otolla!
Kartoitamme toimitilatarpeesi ja etsimme yrityksellesi parhaiten sopivat vapaat toimitilat. Koska vuokranantajat maksavat palvelumme, on tämä yrityksellesi veloituksetonta.
OTA YHTEYTTÄ - SOVI NÄYTTÖ!
Kaikki kohteemme eivät ole netissä, kerro tilatarpeesi niin kartoitamme vaihtoehdot.
Palvelumme on tilanhakijalle ilmainen
Pyydä lisätietoa
