Vuokrataan liiketilat - Helsinki
Kotisaarenkatu 3, Arabia, 00550 Helsinki #10853003
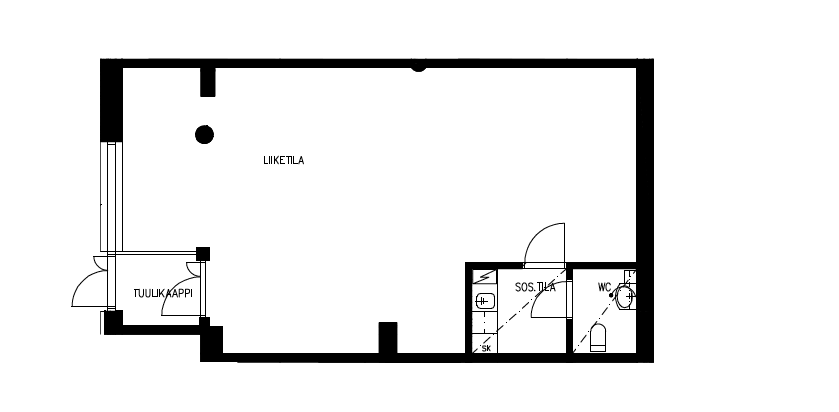
Uudehkoa katutason 76,5 m² liiketilaa Arabianrannassa.
Osoite
Kotisaarenkatu 3, 00550 Helsinki
Tilatyyppi
Liiketilaa
76,5 m2
Pohjapiirros
Kiinteistö
Liiketilaa asuintalon kivijalassa, hyvälla paikalla Arabianrannassa.
Sijainti Toukolankadun puolella.
Tilassa on omat sosiaalitilat.
Kotisaarenkatu 3 on asuinkiinteistö, jonka kivijalassa on muutamia liiketiloja, jotka soveltuvat niin myymälätiloiksi kuin toimistokäyttöön. Lähellä on kauppakeskus Arabian monipuoliset palvelut.
Tila ei sovellu parturi-kampaamo, ravintola-, baari- tai kahvilakäyttöön.
This premises is not suitable for use as a barbershop, restaurant, bar or café.
Sijainti Toukolankadun puolella.
Tilassa on omat sosiaalitilat.
Kotisaarenkatu 3 on asuinkiinteistö, jonka kivijalassa on muutamia liiketiloja, jotka soveltuvat niin myymälätiloiksi kuin toimistokäyttöön. Lähellä on kauppakeskus Arabian monipuoliset palvelut.
Tila ei sovellu parturi-kampaamo, ravintola-, baari- tai kahvilakäyttöön.
This premises is not suitable for use as a barbershop, restaurant, bar or café.
Sijainti
Arabianranta
Pysäköinti
Kiinteistössä on oma pysäköintihalli.
Palvelut
Kauppakeskus Arabian palvelut.
Kulkuyhteydet
Raitiovaunu, bussi
Vapautuu
01.03.2026
Rakennusvuosi
2009
Kerros
1
Energiatehokkuusluokka
Ei lain edellyttämää energiatodistusta
Katutasossa
Hissi
Ota yhteyttä
ScanReal Oy LKV
Opus Business Park
Hitsaajankatu 24
00810 Helsinki
info@scanreal.fi
Puh:
Näytä puhelinnumero
020 730 8830
Sopivat toimitilat yhdellä otolla!
Kartoitamme toimitilatarpeesi ja etsimme yrityksellesi parhaiten sopivat vapaat toimitilat. Koska vuokranantajat maksavat palvelumme, on tämä yrityksellesi veloituksetonta.
OTA YHTEYTTÄ - SOVI NÄYTTÖ!
Kaikki kohteemme eivät ole netissä, kerro tilatarpeesi niin kartoitamme vaihtoehdot.
Palvelumme on tilanhakijalle ilmainen
Pyydä lisätietoa
