Vuokrataan toimistotilat - Oulu
Hallituskatu 36, Keskusta, 90100 Oulu #10852981
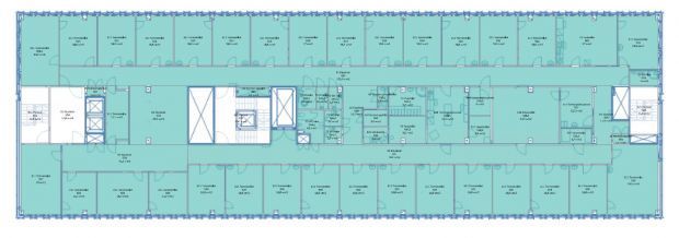
Vuokrataan 5. kerroksen 995.5 m2 siistit toimistotilat Postitalosta, Hallituskatu 36.
Postitalo sijaitsee loistavien liikenneyhteyksien varrella, Oulun keskustassa.
Rautatieasema ja kaikki julkisen liikenteen yhteydet on kiinteistön vieressä ja omalla autolla asioiville on runsaasti kadunvarsipaikoitusta sekä iso parkkihalli Kivisydän on lähellä.
Lisätietoja numerosta 020 7290 710. Lisää kohteita osoitteessa www.premises.fi
Kohteella ei ole lain edellyttämää energiatodistusta.Kerros: 5
Osoite
Hallituskatu 36, 90100 Oulu
Tilatyyppi
Toimistotilaa
995,5 m2
Ota yhteyttä
CRE PREMISES
Puh. Näytä puhelinnumero 020 7290 710
Vantaankoskentie 14
01670 VANTAA
Pyydä lisätietoa
