Vuokrataan liiketilat - Kempele
Zatelliitintie 17, 90440 Kempele #10852972
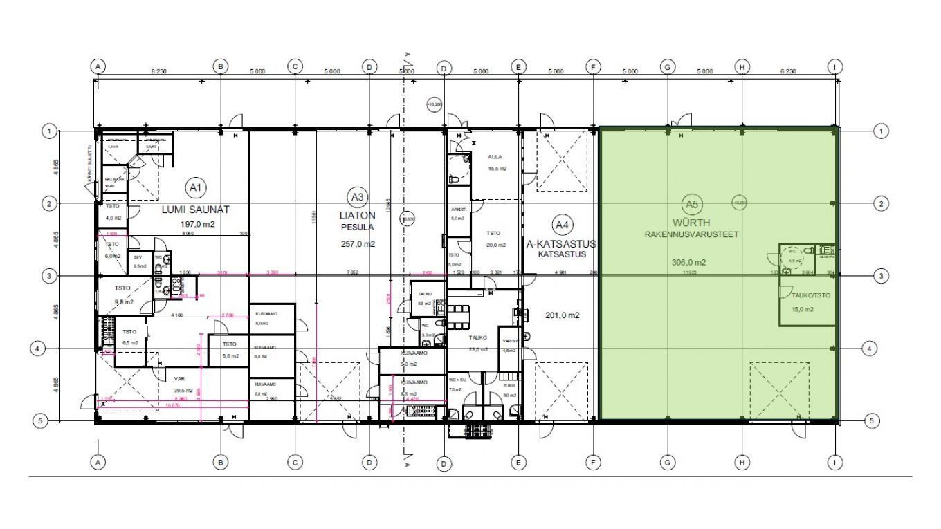
Vuokrataan vapautumassa oleva 306m2 liiketila Zatelliitintie 17 kiinteistössä. Mahdollisuuksien tila, tila on muokattavissa käyttäjän tarpeiden mukaan. Tällä hetkellä tilassa toimii Würth.
Pihassa erinomaiset pysäköintimahdollisuudet.
Tervetuloa Zatelliittipark-kiinteistöön Zatelliitin alueelle, Kempeleen sydämeen, jossa uudehkot toimitilat ja loistava näkyvyys moottoritielle tekevät kiinteistöstä houkuttelevan paikan yrityksille. Sijainti on toimiva kehittyvällä, dynaamisella alueella hyvien liikenneyhteyksien äärellä.
Lisätietoja 020 7290 710. Lisää kohteita osoitteesta www.premises.fi.
Kohteella ei ole lain edellyttämää energiatodistusta tai energialuokka ei tiedossa.Kerros: 1
Bussipysäkki noin 1 km
Kempeleen rautatieaseman 1,5 km
Lentokenttä noin 10 km
CRE PREMISES
Puh. Näytä puhelinnumero 020 7290 710
Vantaankoskentie 14
01670 VANTAA
