Vuokrataan toimistotilat - Jyväskylä
Ahlmaninkatu 2, 40100 Jyväskylä #10852968
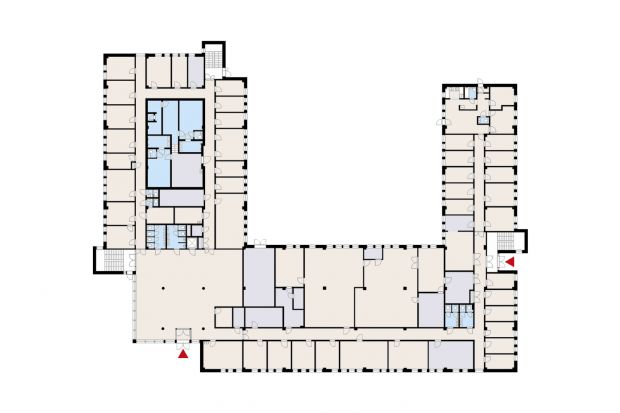
Vuokrattavana toimitilaa Mattilanniemestä, aivan Jyväskylän keskustan läheisyydestä Jyväsjärven rannalta. Sijainti tuo palvelut ja joukkoliikenneyhteydet kävelyetäisyydelle, ja alue linkittyy sujuvasti yliopiston muihin kampuksiin. Mattilanniemi ja Ylistönrinne sijaitsevat vastakkaisilla rannoilla ja ovat yhteydessä toisiinsa kevyen liikenteen sillan kautta. Vapaata pinta-alaa on yhteensä 4871 m2. Tilat soveltuvat erinomaisesti toimisto-, opetus- ja muuhun toimitilakäyttöön.
Lisätietoja 020 7290 710. Lisää kohteita osoitteesta www.premises.fi.
Kohteella ei ole lain edellyttämää energiatodistusta tai energialuokka ei tiedossaKerros: 1
CRE PREMISES
Puh. Näytä puhelinnumero 020 7290 710
Vantaankoskentie 14
01670 VANTAA
