Vuokrataan liiketilat - Helsinki
Viides linja 4, Kallio, 00530 Helsinki #10852961
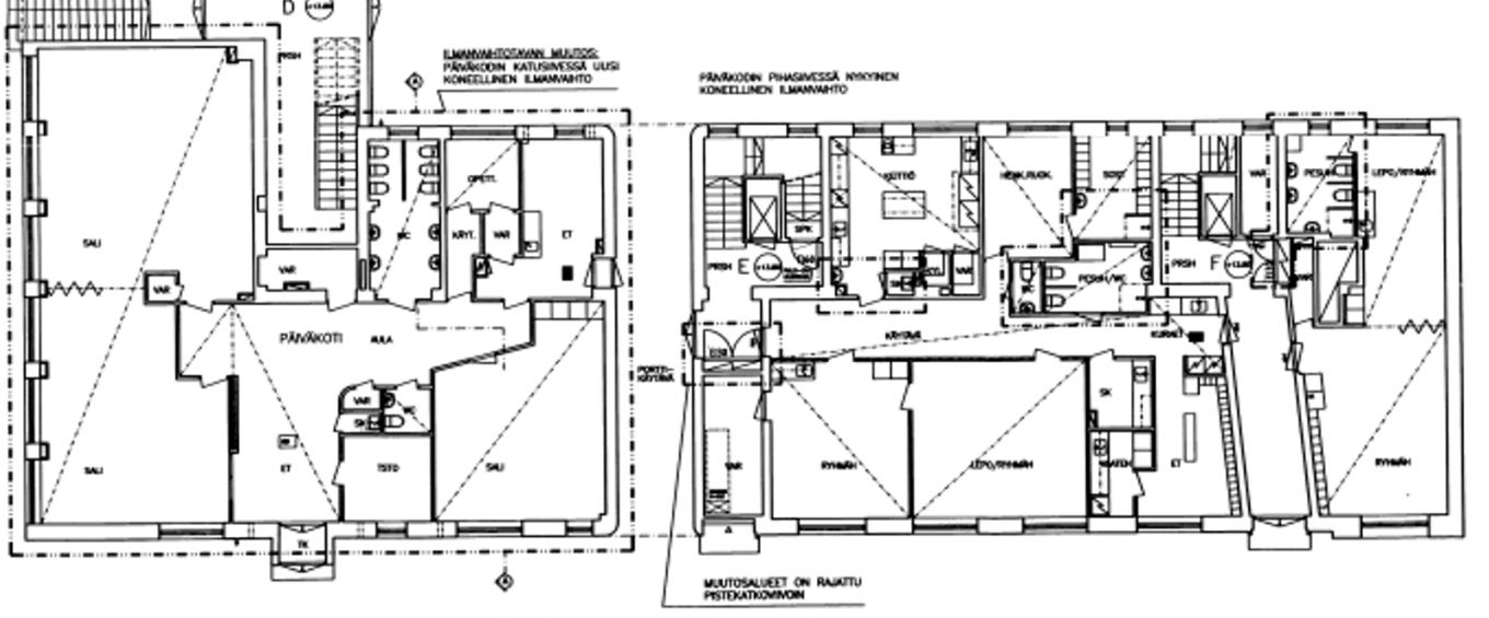
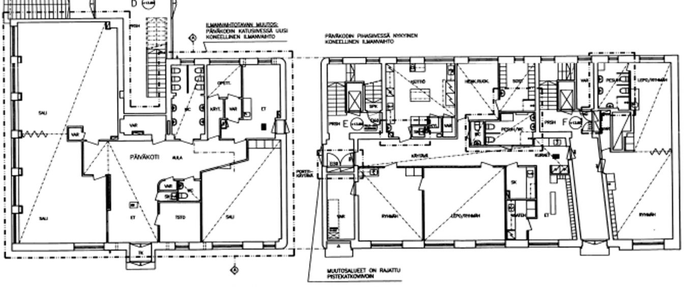
Vuokrattavana on kiinteistön katutasossa sijaitsevat entisen päiväkodin tilat, jotka koostuvat kolmesta erillisestä kokonaisuudesta.
Taloyhtiössä yhdistyvät vastakkaisilla puolilla sijaitsevat Neljännen ja Viidennen linjan rakennukset. Molemmat talot ovat peruskorjattu vuonna 2008. Taloyhtiössä on sekä asuinhuoneistoja että liiketiloja.
Asunto Oy Helsingin Kallion Linjat on keskeisintä Kalliota. Entinen työläiskaupunginosa Kallio on muuttunut moderniksi, nuoren polven suosimaksi alueeksi ja tarjoaa nykyisin kahviloiden, ravintoloiden ja muiden palveluiden monipuolisen tarjonnan.
Lisätiedot ja esittely kohteesta 0207 2907 10. Lisää kohteita www.premises.fi
Kohteella ei ole lain edellyttämää energiatodistusta tai energialuokka ei tiedossa.Kerros: katutaso
CRE PREMISES
Puh. Näytä puhelinnumero 020 7290 710
Vantaankoskentie 14
01670 VANTAA
