Vuokrataan liiketilat - Seinäjoki
Törnäväntie 30, 60200 Seinäjoki #10852935
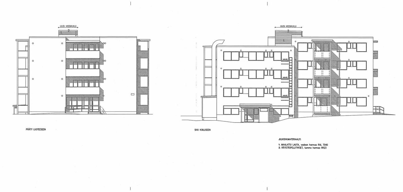
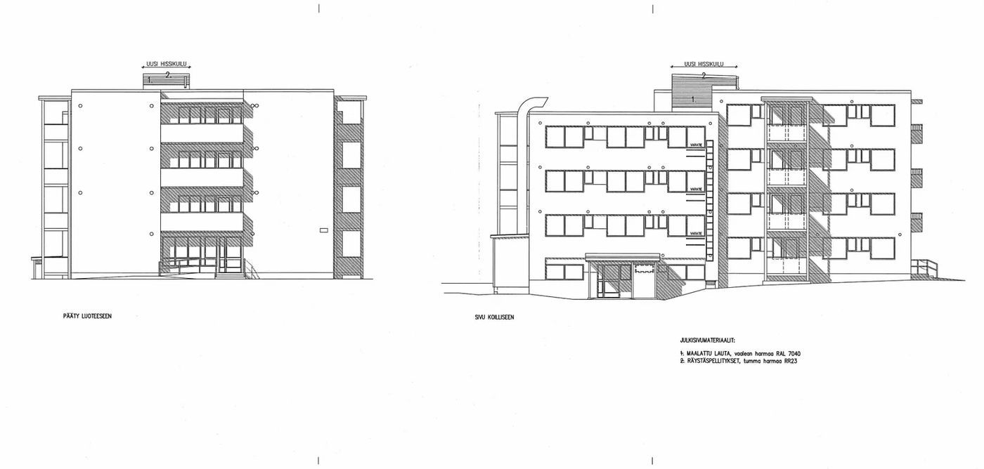
SBB Seinäjoen Törnäväntie 30 Oy on kiinteistökohde Seinäjoen Törnävän kaupunginosassa. Kohde on 1450 m2 kokoinen pienkerrostalo, joka on aiemmin toiminut hoivakotina. Rakennuksessa on noin 40 huonetta, joista jokaisessa on oma kylpyhuone. Lisäksi kohteessa on valmistuskeittiö, saunallinen pesutila sekä yhteiset ruokailu- ja oleskelutilat. Tilat soveltuvat erinomaisesti esimerkiksi palvelukotikäyttöön. Pihalta löytyy myös runsaasti pysäköintipaikkoja.
Lisätietoja 020 7290 710. Lisää kohteita www.premises.fi
Energialuokka D.
Osoite
Törnäväntie 30, 60200 Seinäjoki
Tilatyyppi
Liiketilaa
1450 m2
Ota yhteyttä
CRE PREMISES
Puh. Näytä puhelinnumero 020 7290 710
Vantaankoskentie 14
01670 VANTAA
Pyydä lisätietoa
