Vuokrataan toimistotilat - Kuopio
Volttikatu 4, 70150 Kuopio #10852882
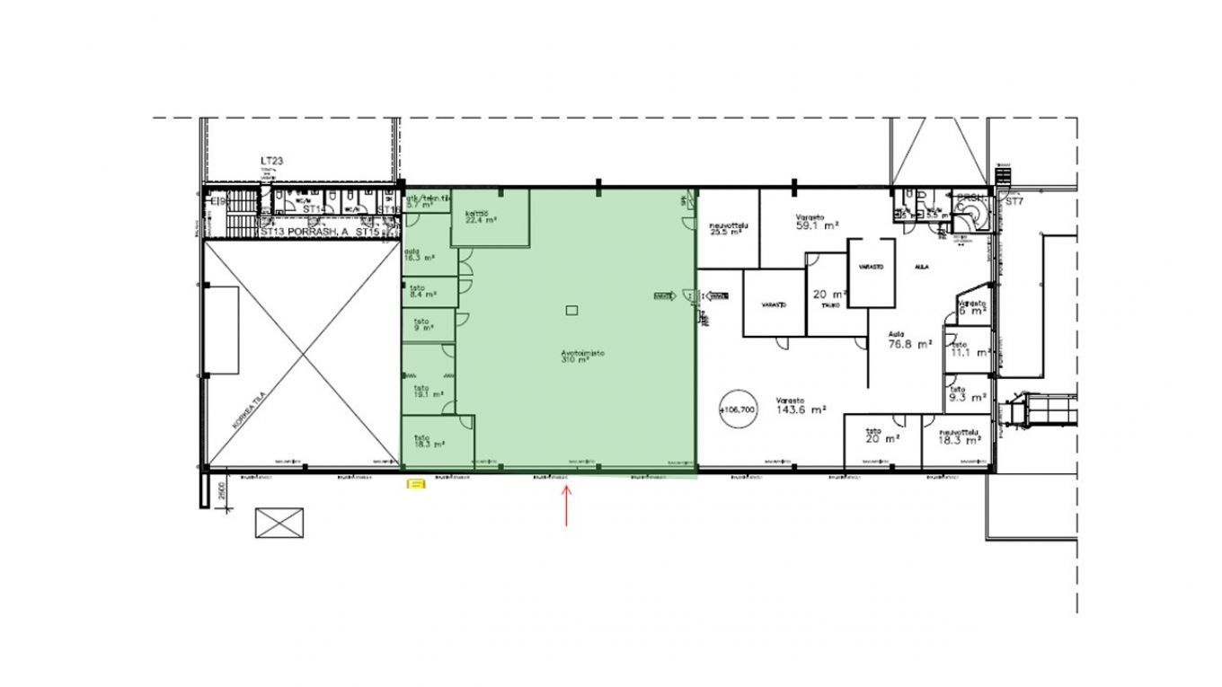
Vuokrataan Volttikatu 4 toisen kerroksen siisti toimistotila.
Kuopiossa Volttikatu 4 vapaana toimistotilaa yhteensä n. 410 neliötä.
Tilat sijaitsevat toisessa kerroksessa.
Lisätietoja 020 7290 710, lisää kohteita www.premises.fi
Kohteella ei ole lain edellyttämää energiatodistusta.Kerros: 2
Osoite
Volttikatu 4, 70150 Kuopio
Tilatyyppi
Toimistotilaa
410 m2
Ota yhteyttä
CRE PREMISES
Puh. Näytä puhelinnumero 020 7290 710
Vantaankoskentie 14
01670 VANTAA
Pyydä lisätietoa
