Vuokrataan toimistotilat - Helsinki
Nuijamiestentie 5, Haaga, 00400 Helsinki #10852858
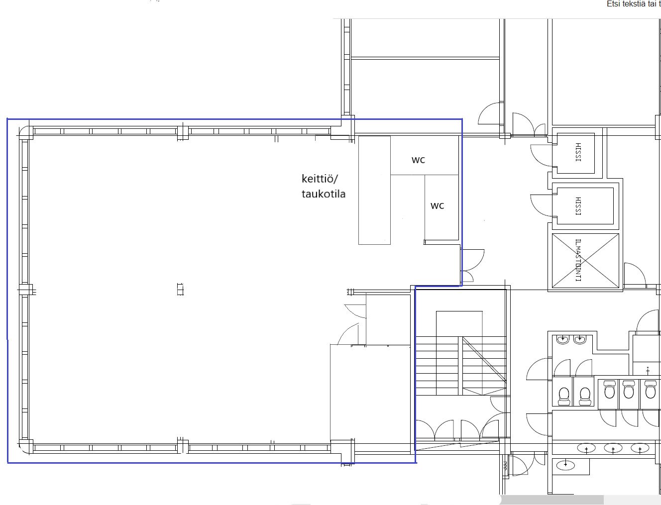
Vuokrataan 2.kerroksessa remontoittu toimistotila 177m2 Haagan Toimistoristikosta. Huoneistossa on avotila, pieni neuvottelutila/työhuone, pieni varastohuone, avokeittiö-/taukotila ja 2 wc. Huoneisto sopii hyvin bybriditilaksi tai showroomiksi ja on muokattavissa vuokralaisen tarpeiden mukaan.
Kiinteistössä on tehty merkittävä saneeraus, ilmastointi on uusittu. Kerrokselle tilaan eteen tulee henkilö-että tavarahissi.
Kiinteistössä on tehty merkittävä saneeraus.
Toimistoristikko sijaitsee Hämeenlinnanväylän vieressä ja Kehä I:n läheisyydessä.
Ilmaisia 2h parkkipaikkoja on pihalla ja kadun varrella, mahdollistaa vuokrata autopaikan pihalta että hallista, takapihalla löyty sähkölatauspisteet.
Kiinteistössä smartpost palvelu sekä kellaritilassa yhteiskäytössä suihkutilat. Naapurikiinetistöissä on lounasravintolat ja lähellä löytyy ruokakauppa K-Supermarket.
Etäisyydet:
Raitiovaunupysäkki 350m
Bussipysäkki 400m
Juna-asema 1,4km
Lentoasema 15km
Kysy lisää!
Hissi
Comreal Oy LKV
Salla Saraniemi
Näytä puhelinnumero
040 138 1081
P.
Näytä puhelinnumero
020 744 1000
Läkkisepänkuja 6, 00620 Helsinki
Comreal Oy on kasvava ja osaava kiinteistöalan palveluntuottaja kiinteistöjen omistajille ja käyttäjille.
Kiinteistö on sijoittajalle hyvä sijoitus vain, jos siellä on tyytyväiset asiakkaat, eli vuokralaiset. Siksi laadukas asiakaspalvelu on toiminnan lähtökohta.
