Vuokrataan toimistotilat - Helsinki
Lönnrotinkatu 11, Kamppi, 00120 Helsinki #10852855
Helsingin Lönnrotinkatu 11 - Toimisto 254 m²
Osoite
Lönnrotinkatu 11, 00120 Helsinki
Tilatyyppi
Toimistotilaa
254 m2
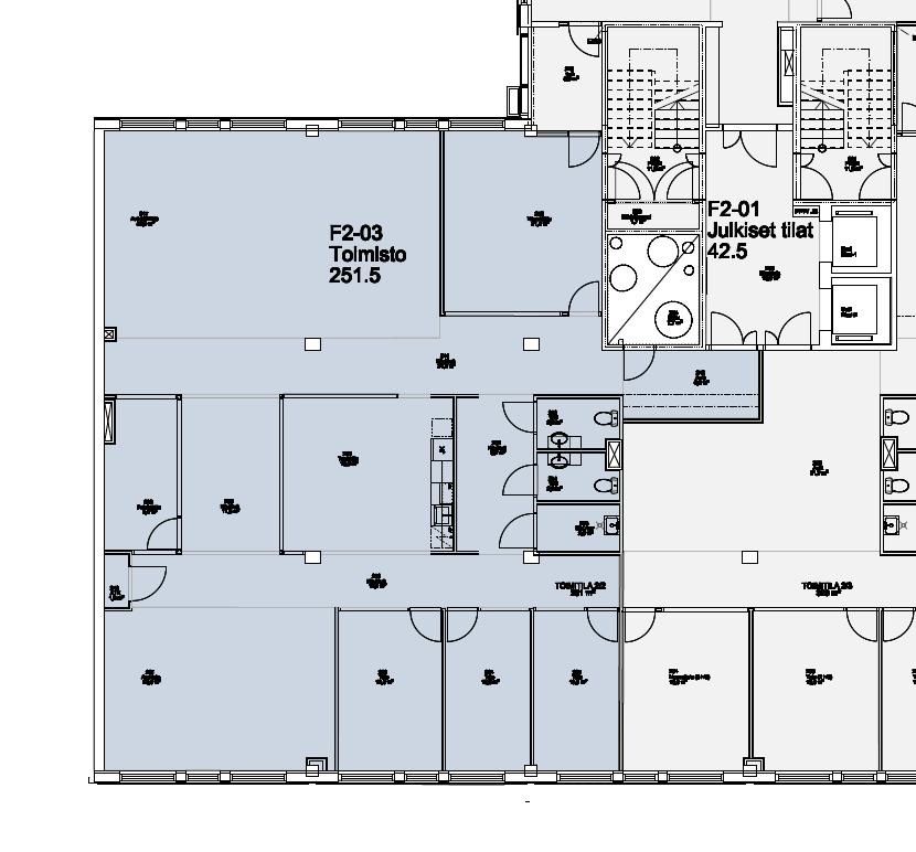
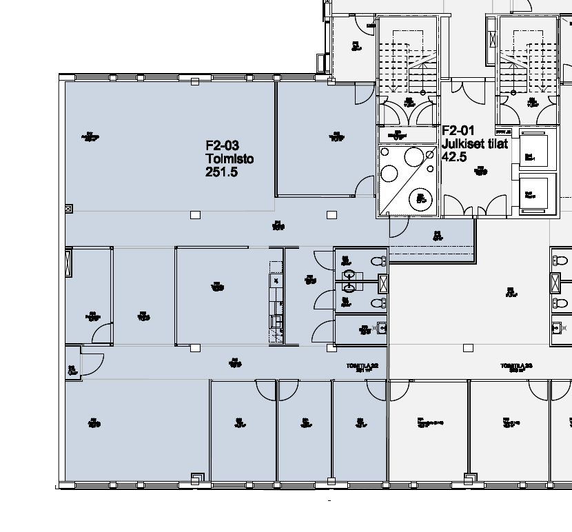
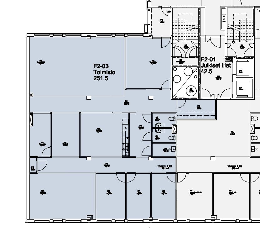
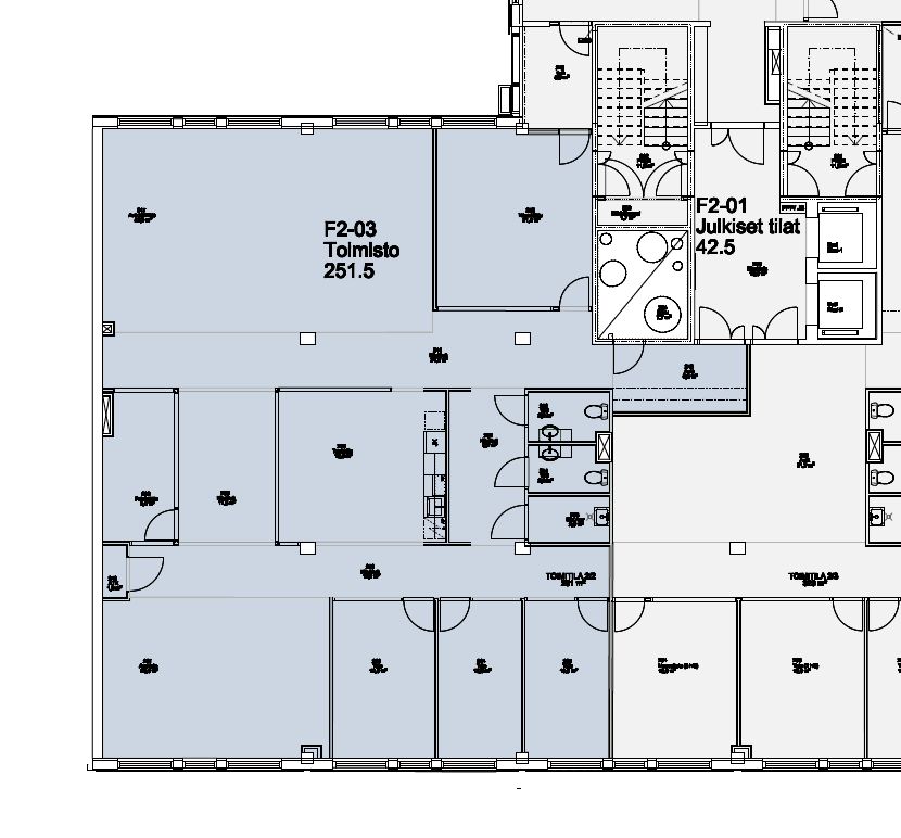
Pohjapiirros
Kiinteistö
Valoisa ja tehokas toimistotila Helsingin keskustasta
Vuokrattavana toimistotila Lönnrotinkatu 11:sta, Kampin sydämestä. Tämä toisen kerroksen toimisto tarjoaa erinomaiset puitteet tehokkaaseen ja viihtyisään työskentelyyn aivan Helsingin ydinkeskustassa.
Tila koostuu avotoimistosta ja huoneista, omasta keittiöstä sekä wc-tiloista. Pohjaratkaisu tukee sekä tiimityötä että rauhallista työskentelyä. Tilassa on runsaasti luonnonvaloa ja se on helposti muokattavissa vuokralaisen tarpeisiin.
Tilan vuokrattava pinta-ala on 251,2 m² + jyvitetyt sosiaalitilat 3 m², yhteensä n. 254 m².
Lönnrotinkatu 11 - Modernia toimitilaa Helsingin keskustasta
Lönnrotinkatu 11, tuttavallisemmin "Lönkka 11", tarjoaa nykyaikaisia ja muunneltavia toimitiloja Helsingin Kampissa, aivan ydinkeskustan palveluiden ja liikenneyhteyksien äärellä. Vuonna 1972 valmistunut ja vuonna 2016 täysin saneerattu kiinteistö yhdistää klassisen arkkitehtuurin ja modernin toimistotekniikan.
Sijainti
Lönnrotinkatu 11 sijaitsee Kampin sydämessä, erinomaisella paikalla:
Kampin metroasema ja bussiterminaali: n. 600 m
Helsingin päärautatieasema: n. 890 m
Raitiovaunupysäkki: 260 m
Bussipysäkki: 150 m
Helsinki-Vantaan lentoasema: n. 22 km
Kivenheiton päässä ovat myös lukuisat ravintolat, kahvilat, hotellit ja muut keskustan palvelut. Ruttopuisto tarjoaa viihtyisän ympäristön tauoille ja etäpalavereille. Kohteen lähellä on myös runsaasti pysäköintilaitoksia.
Palvelut
Kiinteistössä on kattavat palvelut, jotka tukevat sujuvaa työarkea:
Lounasravintola ja kahvila katutasossa
Pukeutumis- ja suihkutilat
Pyörävarasto
Vuokrattavat autopaikat autohallissa ja sisäpihalla
Sähköautojen latauspisteet
Modernit, helposti muokattavat toimistotilat eri kerroksissa
Varastotilaa kellarikerroksessa
Vastuullisuus
Lönnrotinkatu 11 on ympäristöystävällinen valinta. Kiinteistölle on myönnetty LEED Platinum -sertifikaatti, joka kertoo korkeasta energiatehokkuudesta ja vastuullisista rakennusratkaisuista. Saneerauksessa on hyödynnetty vihreää sähköä, vettä säästäviä kalusteita ja säilytetty rakennuksen kantavat rakenteet.
Ota yhteyttä
Kiinnostuitko? Ota yhteyttä ja tule tutustumaan!
Toimitilavälityspalvelumme on tilanhakijalle maksuton.
Vuokrattavana toimistotila Lönnrotinkatu 11:sta, Kampin sydämestä. Tämä toisen kerroksen toimisto tarjoaa erinomaiset puitteet tehokkaaseen ja viihtyisään työskentelyyn aivan Helsingin ydinkeskustassa.
Tila koostuu avotoimistosta ja huoneista, omasta keittiöstä sekä wc-tiloista. Pohjaratkaisu tukee sekä tiimityötä että rauhallista työskentelyä. Tilassa on runsaasti luonnonvaloa ja se on helposti muokattavissa vuokralaisen tarpeisiin.
Tilan vuokrattava pinta-ala on 251,2 m² + jyvitetyt sosiaalitilat 3 m², yhteensä n. 254 m².
Lönnrotinkatu 11 - Modernia toimitilaa Helsingin keskustasta
Lönnrotinkatu 11, tuttavallisemmin "Lönkka 11", tarjoaa nykyaikaisia ja muunneltavia toimitiloja Helsingin Kampissa, aivan ydinkeskustan palveluiden ja liikenneyhteyksien äärellä. Vuonna 1972 valmistunut ja vuonna 2016 täysin saneerattu kiinteistö yhdistää klassisen arkkitehtuurin ja modernin toimistotekniikan.
Sijainti
Lönnrotinkatu 11 sijaitsee Kampin sydämessä, erinomaisella paikalla:
Kampin metroasema ja bussiterminaali: n. 600 m
Helsingin päärautatieasema: n. 890 m
Raitiovaunupysäkki: 260 m
Bussipysäkki: 150 m
Helsinki-Vantaan lentoasema: n. 22 km
Kivenheiton päässä ovat myös lukuisat ravintolat, kahvilat, hotellit ja muut keskustan palvelut. Ruttopuisto tarjoaa viihtyisän ympäristön tauoille ja etäpalavereille. Kohteen lähellä on myös runsaasti pysäköintilaitoksia.
Palvelut
Kiinteistössä on kattavat palvelut, jotka tukevat sujuvaa työarkea:
Lounasravintola ja kahvila katutasossa
Pukeutumis- ja suihkutilat
Pyörävarasto
Vuokrattavat autopaikat autohallissa ja sisäpihalla
Sähköautojen latauspisteet
Modernit, helposti muokattavat toimistotilat eri kerroksissa
Varastotilaa kellarikerroksessa
Vastuullisuus
Lönnrotinkatu 11 on ympäristöystävällinen valinta. Kiinteistölle on myönnetty LEED Platinum -sertifikaatti, joka kertoo korkeasta energiatehokkuudesta ja vastuullisista rakennusratkaisuista. Saneerauksessa on hyödynnetty vihreää sähköä, vettä säästäviä kalusteita ja säilytetty rakennuksen kantavat rakenteet.
Ota yhteyttä
Kiinnostuitko? Ota yhteyttä ja tule tutustumaan!
Toimitilavälityspalvelumme on tilanhakijalle maksuton.
Vapautuu
Kysy
Kerros
2
Ota yhteyttä
Logistila Oy
Kylätie 11-13, 00320 HELSINKI
Karoliina Turppo
Näytä puhelinnumero
050 345 3258
Pyydä lisätietoa
