Vuokrataan liiketilat - Kirkkonummi
Tinantorinkuja 2, 02430 Kirkkonummi #10852841
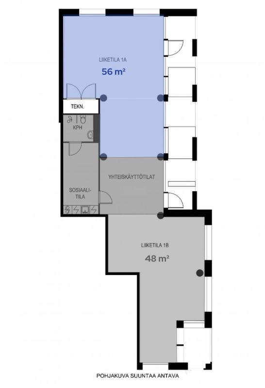
Masalan keskustassa sijaitseva hyväkuntoinen 56 m² katutason liiketila
Osoite
Tinantorinkuja 2, 02430 Kirkkonummi
Tilatyyppi
Liiketilaa
56 m2
Pohjapiirros
Vuokra
911 € / kk + alv
Kiinteistö
Hyväkuntoisen 56 m² liiketilan lisäksi vuokraan sisältyy naapuriliiketilan kanssa yhteiskäytössä oleva 33 m² tila, jossa odotushuone sekä keittiö ja wc. Sisäänkäynti kätevästi suoraan kadulta.
Tilassa on nykyisellään kolme hoitohuonetta jotka on purettavissa.
Lyhytaikaisia asiakaspysäköintipaikkoja talon edessä.
Tila ei sovellu ravintola- tai kahvilatoimintaan.
This premises is not suitable for restaurant or café operations.
Tilassa on nykyisellään kolme hoitohuonetta jotka on purettavissa.
Lyhytaikaisia asiakaspysäköintipaikkoja talon edessä.
Tila ei sovellu ravintola- tai kahvilatoimintaan.
This premises is not suitable for restaurant or café operations.
Vapautuu
Heti
Rakennusvuosi
2020
Kerros
1 / 8
Energiatehokkuusluokka
H (ei luokitusta)
Katutasossa
Hissi
Ota yhteyttä
ScanReal Oy LKV
Opus Business Park
Hitsaajankatu 24
00810 Helsinki
info@scanreal.fi
Puh:
Näytä puhelinnumero
020 730 8830
Sopivat toimitilat yhdellä otolla!
Kartoitamme toimitilatarpeesi ja etsimme yrityksellesi parhaiten sopivat vapaat toimitilat. Koska vuokranantajat maksavat palvelumme, on tämä yrityksellesi veloituksetonta.
Palvelumme on tilanhakijalle ilmainen
Pyydä lisätietoa
