Vuokrataan liiketilat - Kokkola
Tehtaankatu 12, Keskusta, 67100 Kokkola #10852839
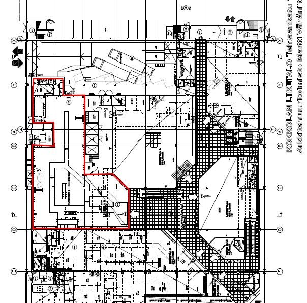
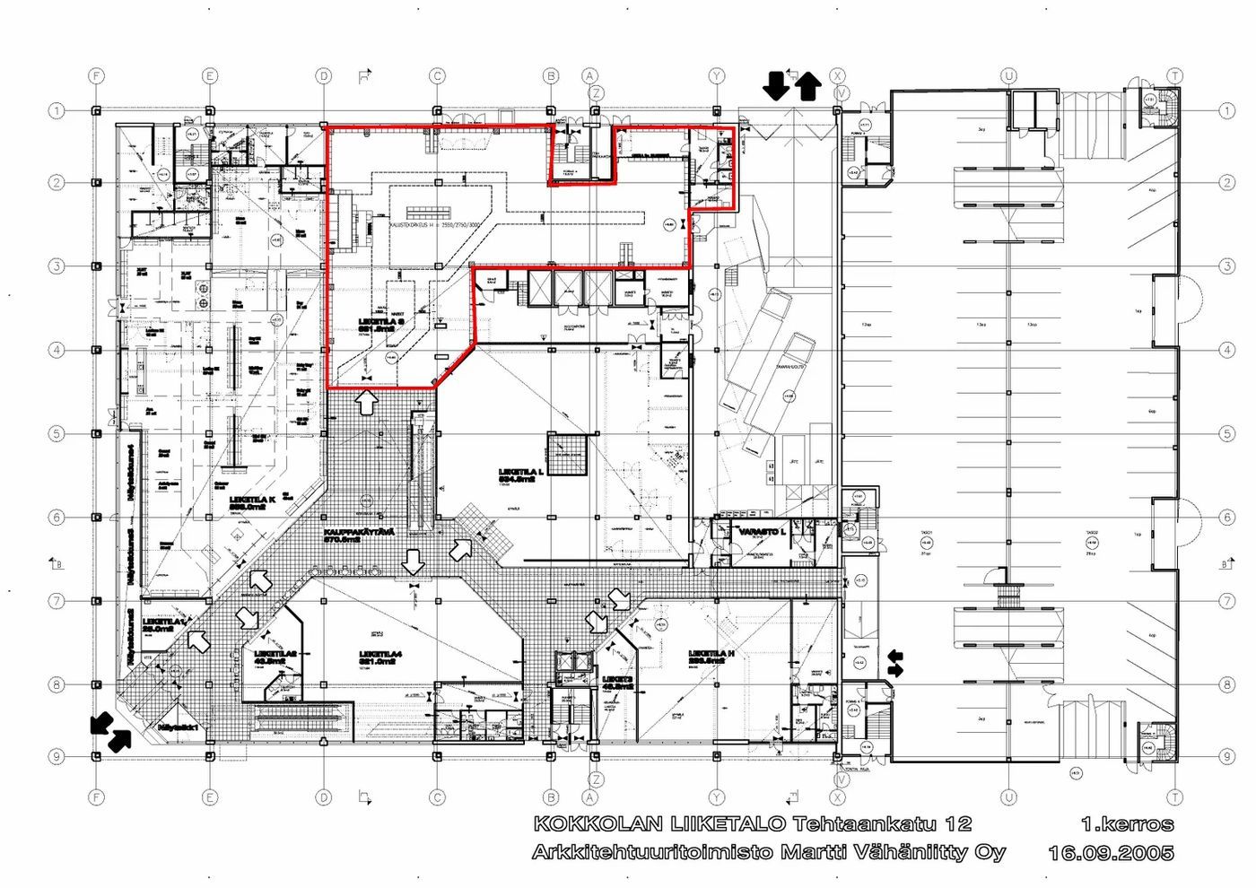
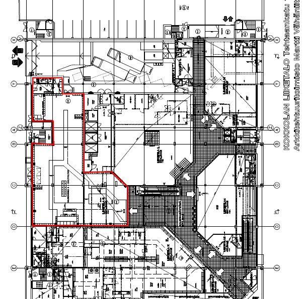
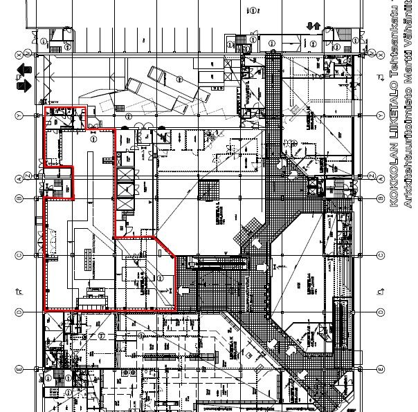
Vuokrataan Kokkolan keskustasta kauppakeskuksesta näkyvältä paikalta myymälätilaa 681.5 m2. Tila on vapaa ja sijaitsee katutasossa.
Lisätietoja numerosta 020 7290 710. Lisää kohteita osoitteessa www.premises.fi
Energialuokka A.Kerros: 1
Osoite
Tehtaankatu 12, 67100 Kokkola
Tilatyyppi
Liiketilaa
681,5 m2
Kulkuyhteydet
Sijaitsee kävelymatkan päässä juna-asemalta.
Ota yhteyttä
CRE PREMISES
Puh. Näytä puhelinnumero 020 7290 710
Vantaankoskentie 14
01670 VANTAA
Pyydä lisätietoa
