Vuokrataan varastotilat - Jyväskylä
Sammonkatu 3 D 37, Keskusta, 40100 Jyväskylä #10852824
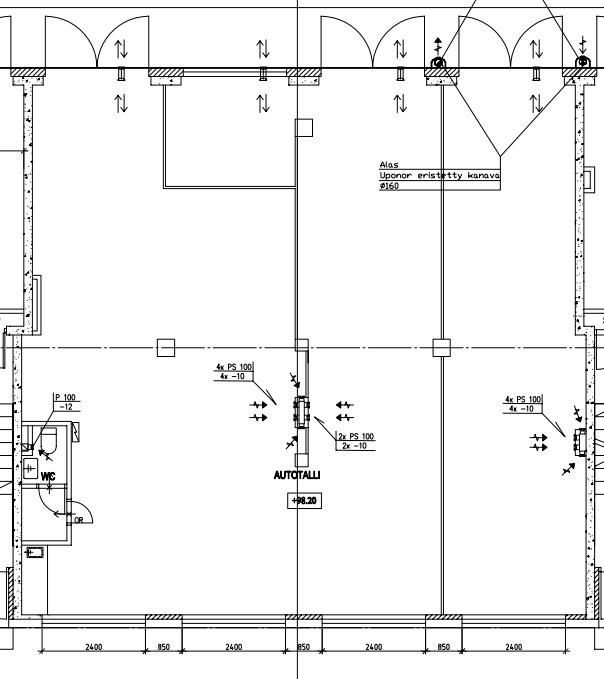
Keskustassa katutason tilava varastotila 155m2. Tilaan kolme pariovea (ks pohjakuva). Tilassa wc. Taloyhtiön hallinnoima tila, vuokrasopimus mahdollista tehdä alkuun 9/2028 saakka.
Osoite
Sammonkatu 3 D 37, 40100 Jyväskylä
Tilatyyppi
Varastotilaa
155 m2
Vuokra
900.00
Muuta
Muut maksut:
sähkö, vesi
sähkö, vesi
Lisätietoa saneerauksista
ks is tod
Vapautuu
Heti
Ota yhteyttä
OP Koti Sisä-Suomi Oy LKV
Jyväskylä Kauppakatu
Kauppakatu 22
40100 JYVÄSKYLÄ
ma - pe 9.00-17.00
Janne Kotamäki
Myyntipäällikkö, LKV, YKV / Toimitilat
Näytä puhelinnumero
050 550 8945
Pyydä lisätietoa
