Myydään varastotilat - Äänekoski
Teollisuuskatu 47, Keskusta, 44150 Äänekoski #10852785
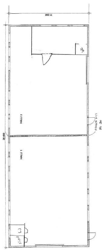
Kulmatontilla Teollisuuskadulla v. 2012 rakennettu puu/betoni runkoinen teollisuushalli. Yhtenäistä hallitilaa, nosto-ovet päädyssä ja sivussa, joten mahdollista tarvittaessa jakaa. Rakennuksen takapäädyssä toimistotila ja wc. Edullinen maalämpö lattialämmityksenä. Oma tontti 1679 m2. Myös vuokrausmahdollisuus 1800 €/kk+alv+sähkö, vesi, auraus
Osoite
Teollisuuskatu 47, 44150 Äänekoski
Tilatyyppi
Varastotilaa
334 m2
Tilajako
Jaettavissa
Tila on jaettavissa. tilaan on kaksi nosto-ovea, jaettavissa tarvittaessa väliseinällä
Myyntihinta
180000.00
Kiinteistö
Kohteella ei ole lain edellyttämää energiatodistusta ja sen vuoksi energialuokka ei ole tiedossa
Sijainti
TP eli pienteollisuusrakennusten korttelialue.
Muuta
Muut maksut:
vakuutus n. 890 €/v, hulevesi 200 €/v, kiinteistövero 487 €/v, sähkö (maalämpö) n. 1000 €/v.
vakuutus n. 890 €/v, hulevesi 200 €/v, kiinteistövero 487 €/v, sähkö (maalämpö) n. 1000 €/v.
Vapautuu
Sopimuksen mukaan
Jaettavissa
Ota yhteyttä
OP Koti Sisä-Suomi Oy LKV
Jyväskylä Kauppakatu
Kauppakatu 22
40100 JYVÄSKYLÄ
ma - pe 9.00-17.00
Janne Kotamäki
Myyntipäällikkö, LKV, YKV / Toimitilat
Näytä puhelinnumero
050 550 8945
Pyydä lisätietoa
