Vuokrataan liiketilat - Jyväskylä
Kauppakatu 3 Lh 37, Keskusta, 40100 Jyväskylä #10852775
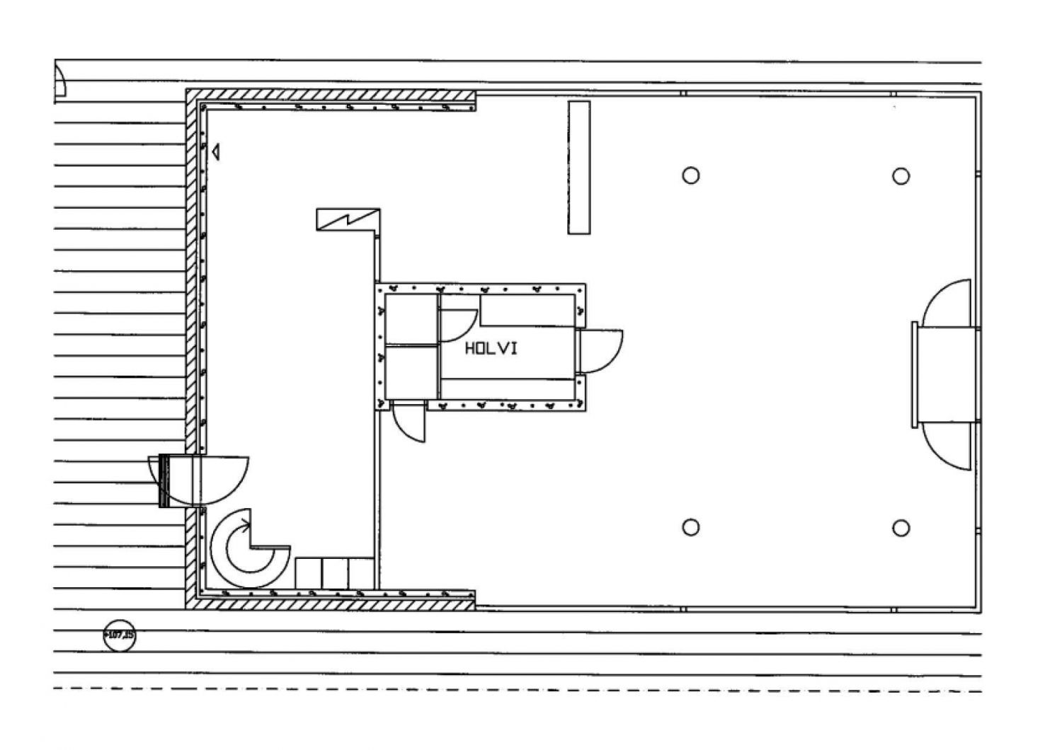
Vuokrataan vilkkaalta paikalta Kauppakadun varrelta katutason liiketila 140m2 ja samassa yhteydessä 37 m2 varasto. Valoisa tila, runsaasti ikkunapinta-alaa. Yhtiössä tehty runsaasti remonttia. Tästä hyvä liikepaikka yrityksellesi.
Osoite
Kauppakatu 3 Lh 37, 40100 Jyväskylä
Tilatyyppi
Liiketilaa
177 m2
Vuokra
1700.00
Muuta
Muut maksut:
sähkö ja vesi
Muut tilat:
liiketila 140 m2 + kellarivar 37 m2
sähkö ja vesi
Muut tilat:
liiketila 140 m2 + kellarivar 37 m2
Vapautuu
Heti
Ota yhteyttä
OP Koti Sisä-Suomi Oy LKV
Jyväskylä Kauppakatu
Kauppakatu 22
40100 JYVÄSKYLÄ
ma - pe 9.00-17.00
Janne Kotamäki
Myyntipäällikkö, LKV, YKV / Toimitilat
Näytä puhelinnumero
050 550 8945
Pyydä lisätietoa
