Vuokrataan/myydään liiketilat - Viitasaari
Keskitie 1, 44500 Viitasaari #10852741
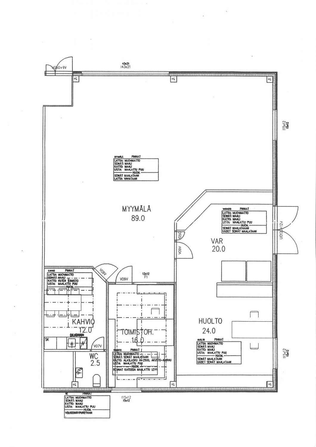
Vuokrataan Viitasaaren keskustasta paraatipaikalta katutason liiketila, jossa myymälä, työtila, toimisto, keittiötila ja wc. Tila on siistikuntoinen ja viilennyksellä varusteltu. Myös osto mahdollinen. Kellarikerroksesta mahdollista vuokrata lisätilaa (käynti liiketilasta portaita ja ajorampin kautta)
Osoite
Keskitie 1, 44500 Viitasaari
Tilatyyppi
Liiketilaa
170 m2
Vuokra
1500.00
Muuta
Muut tilat:
varastotilaa vuokrattavissa erikseen tilan alakerrasta, johon käynti liiketilasta portaita.
varastotilaa vuokrattavissa erikseen tilan alakerrasta, johon käynti liiketilasta portaita.
Vapautuu
Sopimuksen mukaan
Ota yhteyttä
OP Koti Sisä-Suomi Oy LKV
Jyväskylä Kauppakatu
Kauppakatu 22
40100 JYVÄSKYLÄ
ma - pe 9.00-17.00
Janne Kotamäki
Myyntipäällikkö, LKV, YKV / Toimitilat
Näytä puhelinnumero
050 550 8945
Pyydä lisätietoa
