Vuokrataan toimistotilat - Helsinki
Hermannin Rantatie 8, Kalasatama, 00580 Helsinki #10852485
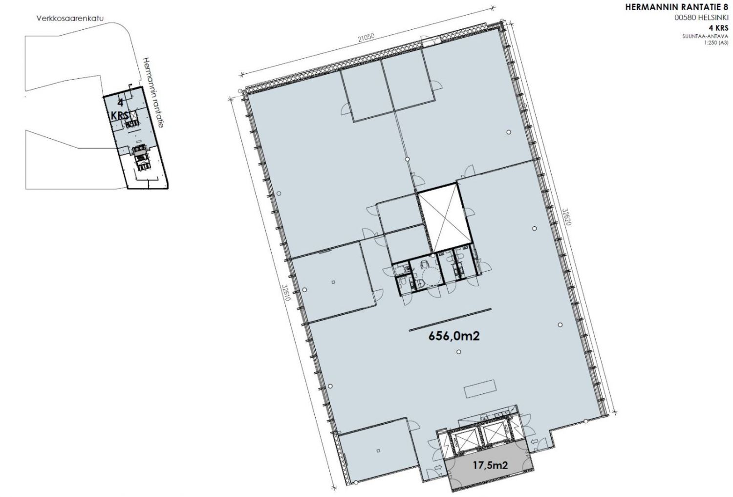
Vuokrataan neljännen kerroksen valoisa ja moderni 656 m² toimistotila Kalasatamasta, Rantatie Business Parkista!
Rantatie Business Park on moderni, linjakas ja tyylikäs talo Kalasataman parhaalla paikalla Hermannin rantatien varrella. Uudet, laadukkaat tilat ovat helposti muunneltavissa vastaamaan hyvinkin erilaisten asiakkaiden tarpeita aina pienyrittäjistä suuryrityksiin. Rantatie Business Park koostuu kolmesta eri osasta: Original, Kasvu ja Loikka. Yhteisten neuvottelutilojen punaisena lankana toimii merihenkisyys. Ravintola Lepuuttaja palvelee sekä talon asiakkaita että vierailevia ruokailijoita.
Vastuullisuuteen on kiinnitetty erityistä huomiota. Laajennusosat Kasvu ja Loikka ovat saaneet BREEAM In-Use Excellent sekä LEED® Gold -ympäristösertifikaatit osoituksena rakennusvaiheessa tehdyistä kestävistä päätöksistä mm. materiaalivalintojen, vedenkäytön ja tavoiteltavan energiatehokkuuden osalta. Laajennusosa Loikan katolla sijaitsevat aurinkopaneelit tuottavat vuosittain noin 7-8% Loikassa käytetystä sähköstä.
Kiinteistössä on käytössä 100% fossiilitonta ja alkuperävarmennettua energiaa. Kiinteistö käyttää fossiilitonta kaukojäähdytystä sekä -lämpöä.
Rantatie Business Parkin tavoitettavuus julkisilla liikennevälineillä on erinomainen, ja valmistunut Kalasatamasta-Pasilaan raitiotiehanke tuo raitiovaunuyhteyden kiinteistön välittömään läheisyyteen. Kannustamme ilmastoystävälliseen liikkumiseen, siksi kiinteistössä on edellytykset niin aktiivipyöräilijöille kuin sähköautoilijoillekin.
Kysy lisätietoja tai sovitaan käynti kohteelle jo tänään!
Näkyvällä paikalla
Hausala Oy
Erkkilänkatu 11, 33100 Tampere
Näytä puhelinnumero
050 472 7077
Mika Savikko
Näytä puhelinnumero
050 472 7077
Mikko Ranta
Näytä puhelinnumero
050 360 6500
