Vuokrataan toimistotilat - Helsinki
Hitsaajankatu 20, Herttoniemi, 00810 Helsinki #10852471
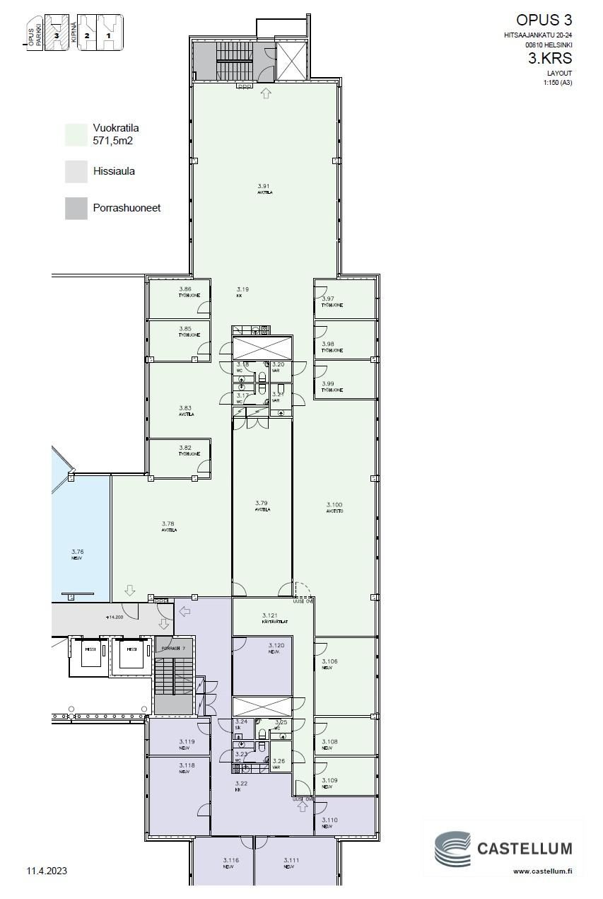
Vuokrataan kolmannen kerroksen 571 m² toimistotila Herttoniemestä, Opus Business Parkista! Tässä siistissä monitoimitilassa on avotilaa sekä useita erikokoisia huoneita. Tila vauputuu sopimuksen mukaan.
Opus 3 -rakennus on osa Opus Business Parkia, joka sijaitsee Herttoniemessä vain 10 minuutin päässä itään Helsingin keskustasta. Opus 3:een pääsee helposti autolla ja bussilla sekä metrolla, jonka lähin asema sijaitsee lyhyen kävelymatkan päässä. Autolla liikkuville löytyy pysäköintipaikkoja rakennuksessa sijaitsevasta pysäköintihallista.
Pohjakerroksessa on ruokakauppa ja yhteisiä tiloja, muu osa rakennuksesta on toimistokäytössä. Opus Business Park tarjoaa monia suosittuja palveluja ravintola- ja kokouspalveluiden lisäksi. Alueella on myös autopesu ja hammaslääkäri ja Opus Business Parkista on suora yhteys ruokakauppaan.
Kysy lisätietoja tai sovitaan käynti kohteelle jo tänään!
Hausala Oy
Erkkilänkatu 11, 33100 Tampere
Näytä puhelinnumero
050 472 7077
Mika Savikko
Näytä puhelinnumero
050 472 7077
Mikko Ranta
Näytä puhelinnumero
050 360 6500
