Vuokrataan toimistotilat - Helsinki
Hitsaajankatu 20, Herttoniemi, 00810 Helsinki #10852468
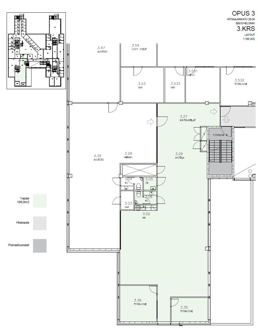
Vuokrataan kolmannen kerroksen valoisa 199 m² toimistotila Herttoniemestä, Opus Business Parkista. Tila on mahdollista muokata asiakkaan toiveiden mukaan!
Opus 3 -rakennus on osa Opus Business Parkia, joka sijaitsee Herttoniemessä vain 10 minuutin päässä itään Helsingin keskustasta. Opus 3:een pääsee helposti autolla ja bussilla sekä metrolla, jonka lähin asema sijaitsee lyhyen kävelymatkan päässä. Autolla liikkuville löytyy pysäköintipaikkoja rakennuksessa sijaitsevasta pysäköintihallista.
Pohjakerroksessa on ruokakauppa ja yhteisiä tiloja, muu osa rakennuksesta on toimistokäytössä. Opus Business Park tarjoaa monia suosittuja palveluja ravintola- ja kokouspalveluiden lisäksi. Alueella on myös autopesu ja hammaslääkäri ja Opus Business Parkista on suora yhteys ruokakauppaan.
Kysy lisätietoja tai sovitaan käynti kohteelle jo tänään!
Hausala Oy
Erkkilänkatu 11, 33100 Tampere
Näytä puhelinnumero
050 472 7077
Mika Savikko
Näytä puhelinnumero
050 472 7077
Mikko Ranta
Näytä puhelinnumero
050 360 6500
