Vuokrataan varastotilat - Tampere
Hatanpään Valtatie 18, Keskusta, 33100 Tampere #10852418
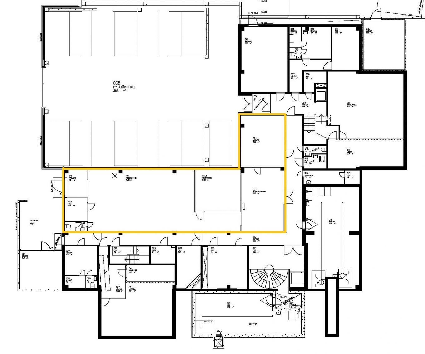
Vuokrattavissa pohjakerroksen varastotila 200 m2 Tampereen keskustasta. Tilaan oma sisäänkäynti rakennuksen sisäpihan puolelta.
Kiinteistö rakennettu 1978, kiinteistötekniikkaa on ajantasaistettu 90- ja 2000-luvuilla. Kiinteistö sijaitsee keskeisellä paikalla Ratinassa bussiaseman vieressä ja n. 300 metrin päässä tulevalta Sorin Aukion raitiovaunupysäkiltä. Juna-asemalle 10 minuutin kävelymatka.
Lisätietoja numerosta 020 7290 710. Lisää kohteita osoitteessa www.premises.fi
Kohteella ei ole lain edellyttämää energiatodistusta.Kerros: P
Osoite
Hatanpään Valtatie 18, 33100 Tampere
Tilatyyppi
Varastotilaa
200 m2
Kulkuyhteydet
Hyvät liikenneyhteydet. Koskikeskus sijaitsee 200 m päässä. Linja-autoasema tien toisella puolella.
Ota yhteyttä
CRE PREMISES
Puh. Näytä puhelinnumero 020 7290 710
Vantaankoskentie 14
01670 VANTAA
Pyydä lisätietoa
