Vuokrataan toimistotilat - Helsinki
Sörnäistenkatu 1, Kalasatama, 00580 Helsinki #10852412
VERK - Toimisto 394 m²
Osoite
Sörnäistenkatu 1, 00580 Helsinki
Tilatyyppi
Toimistotilaa
394 m2
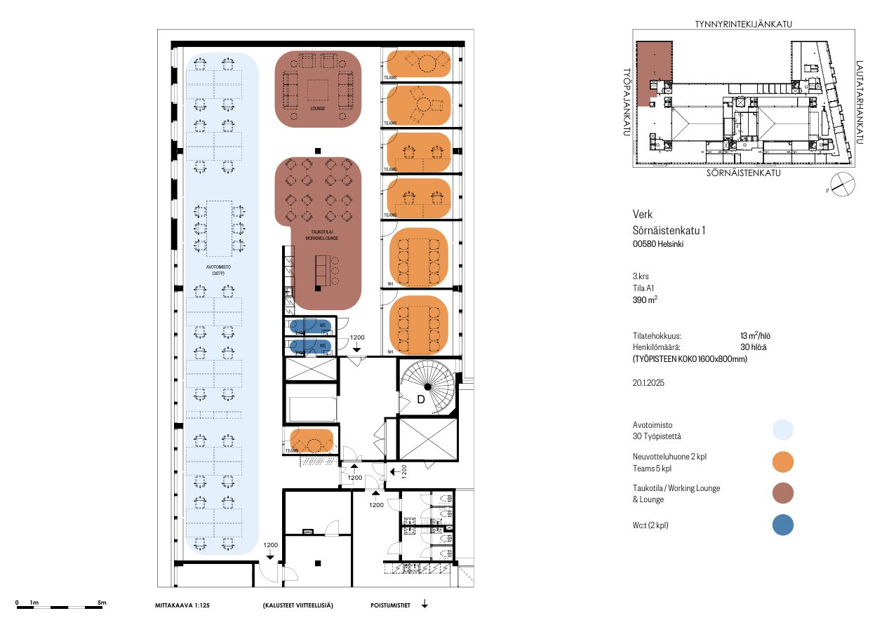
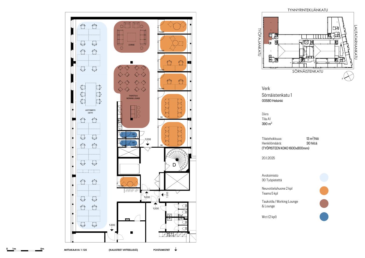
Pohjapiirros
Kiinteistö
394 m²:n toimistotila kolmannessa kerroksessa tarjoaa tilaa noin 20–40 henkilölle. Valoisa ja avara kokonaisuus avautuu upein näkymiin Teurastamon suuntaan, luoden inspiroivan ympäristön työskentelylle. Tilat ovat joustavasti muokattavissa ja modernisoidaan täysin tulevan käyttäjän tarpeiden mukaan, jotta ne tukevat yrityksen ainutlaatuista toimintaa parhaalla mahdollisella tavalla.
Tämä kohde on kuin tehty nuorelle ja luovalle yritykselle, joka arvostaa modernia ilmettä ja urbaania tunnelmaa. Sijainti trendikkäällä ja jatkuvasti kehittyvällä Kalasataman alueella takaa erinomaiset puitteet kasvulle ja verkostoitumiselle.
Katso havainne- ja tilakuvat ohessa!
VERK – Urbaani ja moderni kiinteistö Teurastamon kupeessa
VERK sijaitsee Helsingin Kalasataman trendikkäällä alueella, aivan Teurastamon vieressä. Alue sykkii kaupunkikulttuuria, ravintoloita ja tapahtumia. Kulkuyhteydet ovat erinomaiset: metroasema vain 400 metrin päässä, raitiovaunu ja bussit lähellä, ja autoilijoille oma pysäköintihalli.
Kiinteistö tarjoaa muunneltavat ja modernit toimitilat, jotka voidaan räätälöidä yrityksesi tarpeisiin. Suurimmillaan tiloja on jopa 3 000 m². Valoisa atriumpiha ja lattiasta kattoon ulottuvat ikkunat luovat inspiroivan työympäristön.
Sijainti
Metro 400 m
Raitiovaunu 400 m
Bussi 200 m
Juna 3,3 km
Lentokenttä 15 km
Palvelut
Aulapalvelut
Linkosuon lounasravintola ja kahvila
Kuntosali
Auditorio ja tapahtumatila
Neuvottelutiloja
Hotdesk-alue
Pientoimistotiloja
Pyöräparkki ja sähköauton latauspisteet
Parkkihalli
Vastuullisuus
VERK on suunniteltu kestävän kehityksen periaatteilla. Kiinteistöllä on BREEAM Excellent -sertifikaatti, ja sen käyttämä energia on täysin hiilineutraalia: käytön aikaiset päästöt ovat nolla. Sähkö tuotetaan 100-prosenttisesti kotimaisella tuulivoimalla, ja lämmitys perustuu uusiutuvaan kiertolämpöön. Lisäksi kiinteistöllä on oma aurinkovoimala, joka tukee energiatehokkuutta. Yleiset tilat on toteutettu kiertotaloutta hyödyntäen. Asiakasmuutostöissä hyödynnetään kiertotalouden ratkaisuja aina kun mahdollista, mikä tekee VERK:stä aidosti vastuullisen valinnan.
Ota yhteyttä
Kiinnostuitko? Ota yhteyttä ja tule tutustumaan!
Toimitilavälityspalvelumme on tilanhakijalle maksuton.
Tämä kohde on kuin tehty nuorelle ja luovalle yritykselle, joka arvostaa modernia ilmettä ja urbaania tunnelmaa. Sijainti trendikkäällä ja jatkuvasti kehittyvällä Kalasataman alueella takaa erinomaiset puitteet kasvulle ja verkostoitumiselle.
Katso havainne- ja tilakuvat ohessa!
VERK – Urbaani ja moderni kiinteistö Teurastamon kupeessa
VERK sijaitsee Helsingin Kalasataman trendikkäällä alueella, aivan Teurastamon vieressä. Alue sykkii kaupunkikulttuuria, ravintoloita ja tapahtumia. Kulkuyhteydet ovat erinomaiset: metroasema vain 400 metrin päässä, raitiovaunu ja bussit lähellä, ja autoilijoille oma pysäköintihalli.
Kiinteistö tarjoaa muunneltavat ja modernit toimitilat, jotka voidaan räätälöidä yrityksesi tarpeisiin. Suurimmillaan tiloja on jopa 3 000 m². Valoisa atriumpiha ja lattiasta kattoon ulottuvat ikkunat luovat inspiroivan työympäristön.
Sijainti
Metro 400 m
Raitiovaunu 400 m
Bussi 200 m
Juna 3,3 km
Lentokenttä 15 km
Palvelut
Aulapalvelut
Linkosuon lounasravintola ja kahvila
Kuntosali
Auditorio ja tapahtumatila
Neuvottelutiloja
Hotdesk-alue
Pientoimistotiloja
Pyöräparkki ja sähköauton latauspisteet
Parkkihalli
Vastuullisuus
VERK on suunniteltu kestävän kehityksen periaatteilla. Kiinteistöllä on BREEAM Excellent -sertifikaatti, ja sen käyttämä energia on täysin hiilineutraalia: käytön aikaiset päästöt ovat nolla. Sähkö tuotetaan 100-prosenttisesti kotimaisella tuulivoimalla, ja lämmitys perustuu uusiutuvaan kiertolämpöön. Lisäksi kiinteistöllä on oma aurinkovoimala, joka tukee energiatehokkuutta. Yleiset tilat on toteutettu kiertotaloutta hyödyntäen. Asiakasmuutostöissä hyödynnetään kiertotalouden ratkaisuja aina kun mahdollista, mikä tekee VERK:stä aidosti vastuullisen valinnan.
Ota yhteyttä
Kiinnostuitko? Ota yhteyttä ja tule tutustumaan!
Toimitilavälityspalvelumme on tilanhakijalle maksuton.
Vapautuu
Kysy
Kerros
3
Ota yhteyttä
Logistila Oy
Kylätie 11-13, 00320 HELSINKI
Karoliina Turppo
Näytä puhelinnumero
050 345 3258
Pyydä lisätietoa
