Vuokrataan toimistotilat - Helsinki
Itämerenkatu 1, Ruoholahti, 00180 Helsinki #10852213
Siistiä toimistotilaa Helsingin Ruoholahdessa.
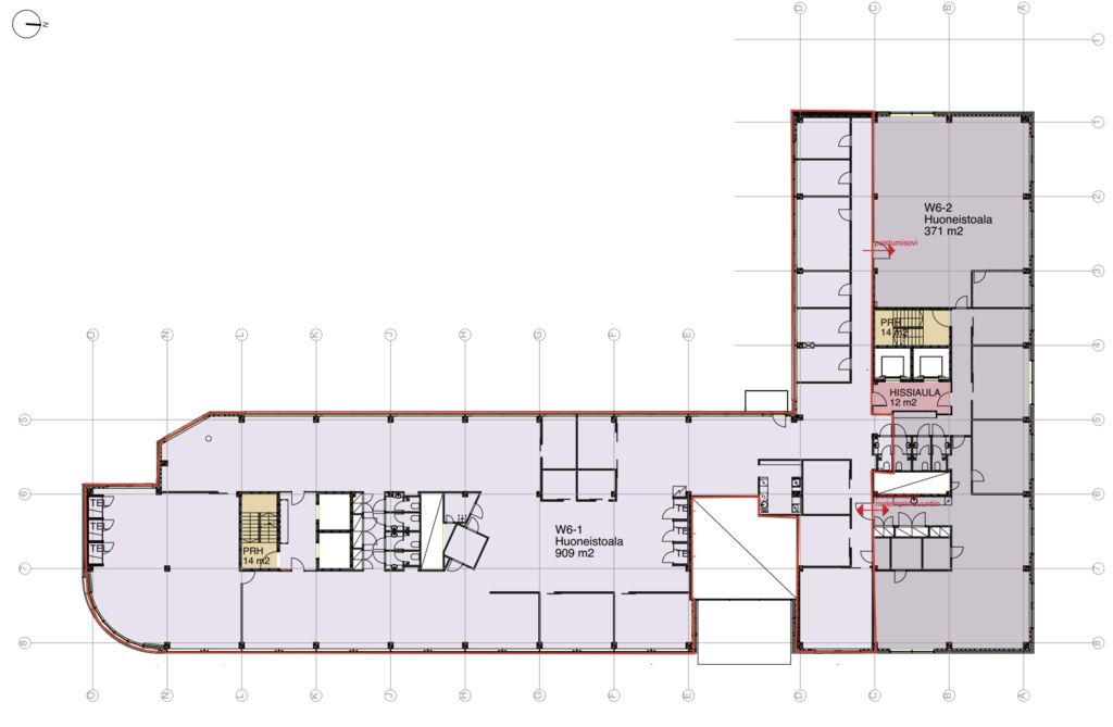
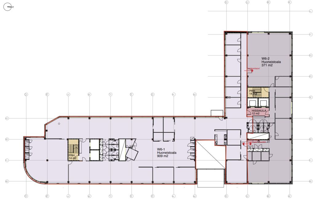
Tämä 909 m² toimisto sijaitsee kiinteistön 6. kerroksessa.
Itämerenkatu 1 on vuonna 1998 valmistunut toimistokiinteistö, joka sijaitsee keskeisellä paikalla Ruoholahdessa. Sen tunnetaan nykyään nimellä Westport. Kiinteistön toimitilat ovat varustettu nykyaikaiselle tekniikalla ja ne ovat muunneltavissa vuokralaisen tarpeiden mukaan. Kiinteistössä on hyvät palvelut yrityksen liiketoiminnan tueksi, kuten aulapalvelu, tasokas lounasravintola catering-palveluineen, vuokrattavia neuvottelutiloja, saunatilat sekä kuntosali. Ympärillä myös Ruoholahden alueen monipuoliset palvelut.
Kysy lisää numerosta 044 723 4700 tai info@bref.fi. Palvelumme on tilanhakijoille ilmainen.
Hissi
Bureau Real Estate Finland Oy
Lars Sonckin kaari 16, 02600 Espoo
Näytä puhelinnumero
0447234700
Bureau Real Estate Finland Oy
https://www.bref.fi