Vuokrataan toimistotilat - Helsinki
Ruoholahdenkatu 8, Kamppi, 00180 Helsinki #10852209
Toimistotilaa Helsingin Kampissa erinomaisten liikenneyhteyksien varrella.
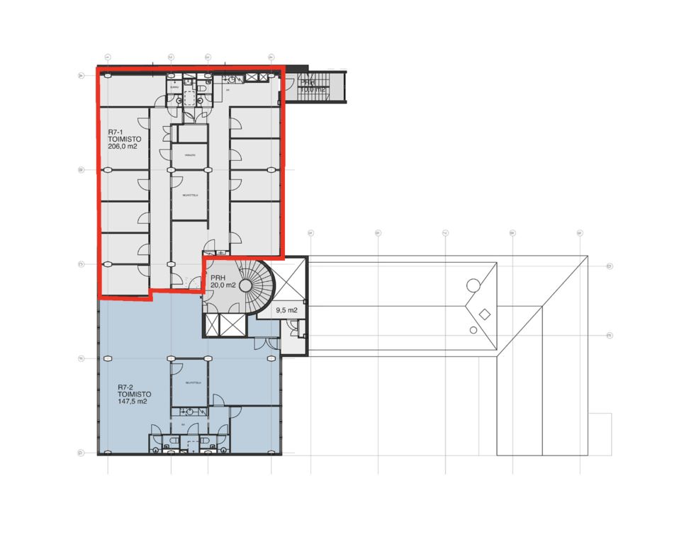
Tämä 206 m² toimistotila sijaitsee kiinteistön 4. kerroksessa.
Ruoholahdenkatu 8 sijaitsee liikenteellisesti hyvällä paikalla, lyhyen matkan päässä Kampin palvelutarjonnasta. Kiinteistön toimitilat on suunniteltu niin että ne ovat helposti muokattavissa vuokralaisen tarpeiden mukaan. Rakennuksessa on koneellinen ilmanvaihto ja jäähdytys. Tilat on peruskorjattu vuonna 2005.
Kysy lisää numerosta 044 723 4700 tai info@bref.fi. Palvelumme on tilanhakijoille ilmainen.
Hissi
Bureau Real Estate Finland Oy
Lars Sonckin kaari 16, 02600 Espoo
Näytä puhelinnumero
0447234700
Bureau Real Estate Finland Oy
https://www.bref.fi