Myydään toimistotilat, liiketilat, työtilat - Lapua

Asemakatu 5, 62100 Lapua #10852165

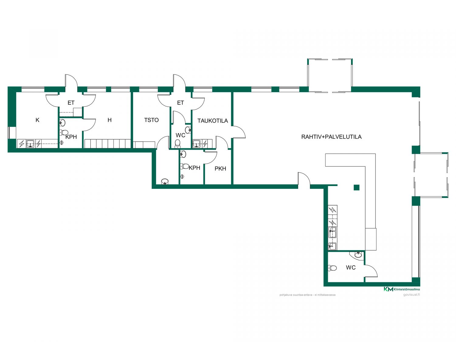
Pinta-alaa tiloilla on yhteensä 191 m2 ja niiden yhteydestä löytyy vanhat Matkakeskuksen tilat, taksipalveluiden käytössä olevat tilat sekä yksi erillinen pieni liikehuoneisto. Kaikki tilat ovat tällä hetkellä vuokrattuna.

Osoite
Asemakatu 5, 62100 Lapua
Tilatyyppi
Toimistotilaa
191 m2
Liiketilaa
191 m2
Työtilaa
191 m2
Yhteensä
191 m2
Myyntihinta
200000
Kiinteistö
Rakennus on vielä verrattain uusi ja modernilla talotekniikalla toteutettu. Lämmitysmuotona on kaukolämpö.
Ympäristö
Sijainti on huippupaikalla ja liikenneyhteydet ovat erinomaiset. Lapuan keskustan palvelut ovat kävelyetäisyydellä ympärillä.
Vuokralaisia
Liike/asuinkerrostalo, jonka pohjakerroksesta liiketilat löytyvät, sijaitsee Lapuan Kaupungin vuokratontilla. Ylemmistä kerroksista löytyy 20 asuinhuoneistoa, jotka tällä hetkellä vuokrattuina
Vapautuu
Sopimuksen mukaan
Rakennusvuosi
2012
Energiatehokkuusluokka
Ei lain edellyttämää energiatodistusta

Katutasossa

Näkyvällä paikalla

Ota yhteyttä

Näytä puhelinnumero 0405619857

Kiinteistömaailma - Joonas Niskala, yrittäjä, ylempi kiinteistönvälittäjä, YKV, LKV, kaupanvahvistaja, Näytä puhelinnumero 040 5619 857 , joonas.niskala@kiinteistomaailma.fi

  https://www.kiinteistomaailma.fi/1405139
Pyydä lisätietoa

Kohteesta Asemakatu 5, Lapua

 

B2B palvelut

MARKKINOINTI

Tavoita oikea kohderyhmä!

LASTAUSRATKAISUT

Mainos
Lastauksien ratkaisut tehokkaammin ja turvallisemmin