Vuokrataan toimistotilat - Oulu
Hallituskatu 11A, Keskusta, 90100 Oulu #10852107
Osoite
Hallituskatu 11A, 90100 Oulu
Tilatyyppi
Toimistotilaa
280 m2
Vuokra
4200,00 €/kk
Vuokraan sisältyy lämpö
Muuta
Vuokrataan siistiä toimistotilaa ydinkeskustasta!
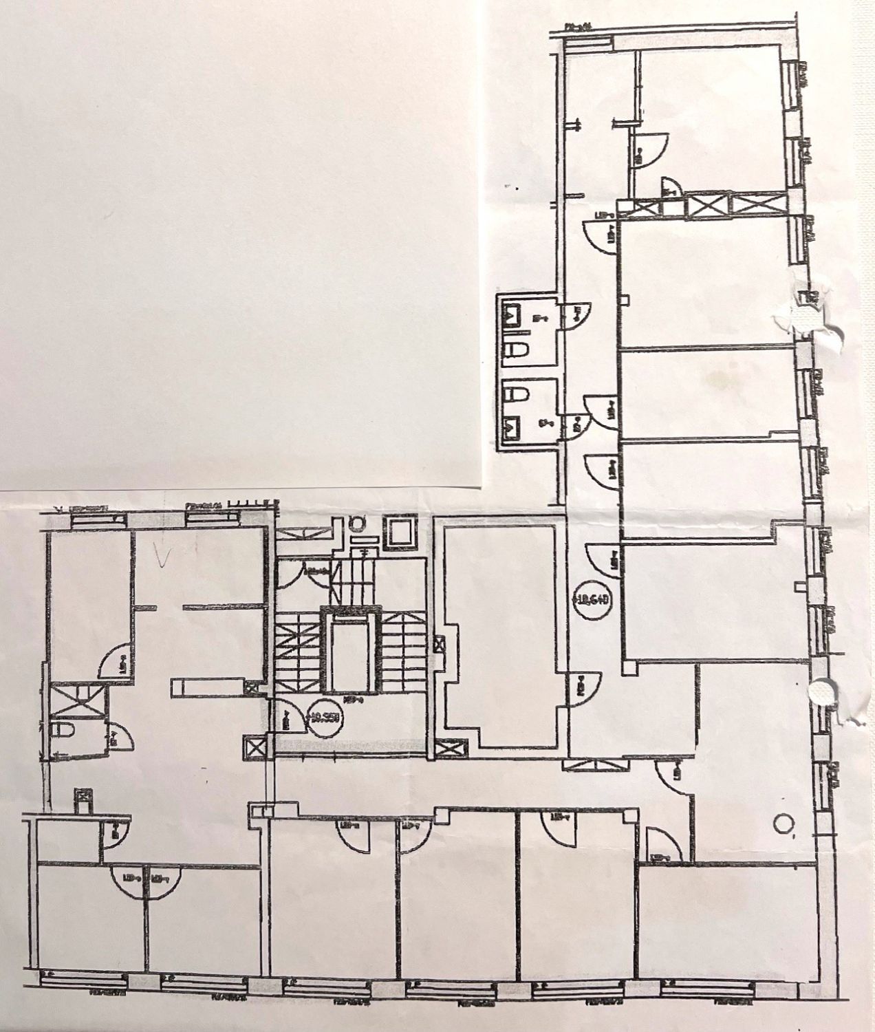
Hyvästä taloyhtiöstä vuokrataan toimistotilaa, jossa on yhteensä 14 erillistä toimistohuonetta, keittiötila ja useita vessoja. Tilassa on koneellinen ilmanvaihto ja hyvä valaistus. Pintoja on remontoitu vuosien varrella ja ne ovat siistissä kunnossa. Tilaan on kaksi sisäänkäyntiä, joten se on helposti mahdollista jakaa 55m2 ja 280m2 osiin. Tila on mahdollista vuokrata myös osittain kalustettuna.
Sijainti on upea keskustan palvelujen äärellä ja Snellmanin puisto avautuu toimiston ikkunoista. Taloyhtiössä on hyvät säilytystilat polkupyörille, ja yhtiön pesu- ja saunatilat ovat käytettävissä. Tila on mahdollista vuokrata myös arvonlisäverottomaan käyttöön.
Tässä kiva toimisto keskeiseltä paikalta, ole yhteydessä niin käydään katsomassa!
Lisätiedot 040 5400 672 tai joni.romppainen@kiinteistotahkola.fi.
Eikö tämä ole sopiva? Kysy muita vaihtoehtojamme!
Hyvästä taloyhtiöstä vuokrataan toimistotilaa, jossa on yhteensä 14 erillistä toimistohuonetta, keittiötila ja useita vessoja. Tilassa on koneellinen ilmanvaihto ja hyvä valaistus. Pintoja on remontoitu vuosien varrella ja ne ovat siistissä kunnossa. Tilaan on kaksi sisäänkäyntiä, joten se on helposti mahdollista jakaa 55m2 ja 280m2 osiin. Tila on mahdollista vuokrata myös osittain kalustettuna.
Sijainti on upea keskustan palvelujen äärellä ja Snellmanin puisto avautuu toimiston ikkunoista. Taloyhtiössä on hyvät säilytystilat polkupyörille, ja yhtiön pesu- ja saunatilat ovat käytettävissä. Tila on mahdollista vuokrata myös arvonlisäverottomaan käyttöön.
Tässä kiva toimisto keskeiseltä paikalta, ole yhteydessä niin käydään katsomassa!
Lisätiedot 040 5400 672 tai joni.romppainen@kiinteistotahkola.fi.
Eikö tämä ole sopiva? Kysy muita vaihtoehtojamme!
Vapautuu
Heti vapaa
Rakennusvuosi
1954
Kerros
2
Ota yhteyttä
Kiinteistö-Tahkola Oy
Lumijoentie 1, 90400 Oulu
Näytä puhelinnumero
0207 480 250
Joni Romppainen
Näytä puhelinnumero
0405400672
Pyydä lisätietoa
