Myydään tuotantotilat - Lohja
Paloniementie 61c, 08450 Lohja #10852103
Tervetuloa tutustumaan selkeään ja toimivaan tuotantotilakokonaisuuteen, joka soveltuu erityisesti elintarvike- tai muuhun vaativaan tuotantokäyttöön.
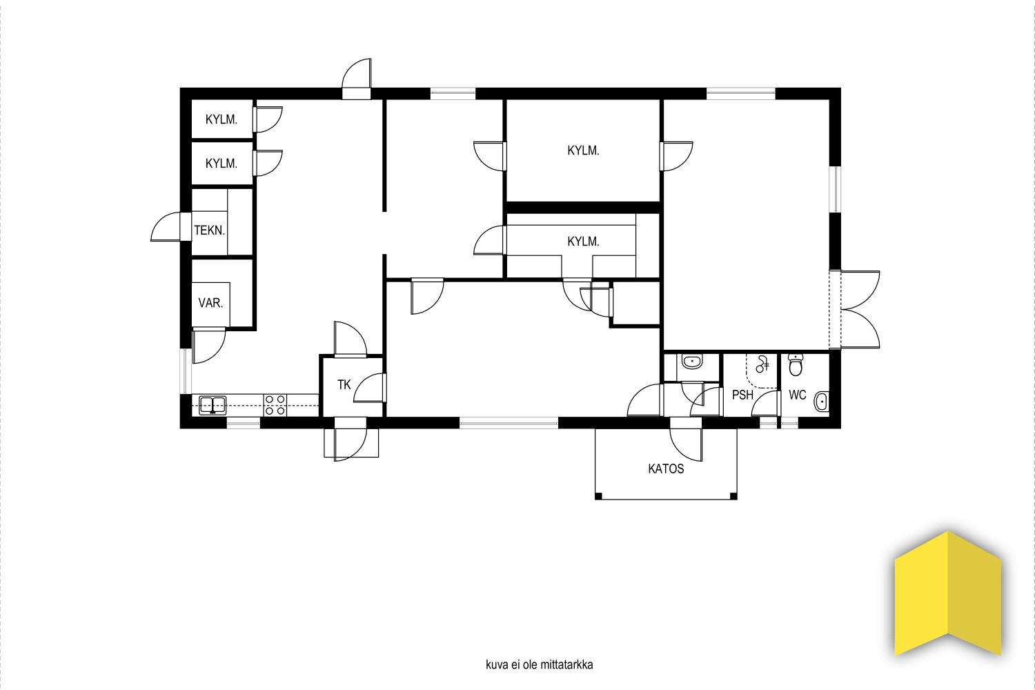
Yksikerroksinen, noin 142 m²:n laajuinen tila koostuu asiakaspalvelutilasta, keittiöstä, useasta elintarviketuotantotilasta sekä yhteensä neljästä kylmäsäilytystilasta. Tilat on jäsennelty loogisesti tuotantoprosessin näkökulmasta, ja eri työvaiheille on varattu omat, selkeästi erotellut alueensa. Keittiö- ja tuotantotilat on varustettu useammilla työpöydillä, lattia- ja seinäpinnat ovat helposti puhdistettavia ja ilmanvaihto on koneellinen, mikä tukee hygieenistä ja tehokasta työskentelyä.
Kylmäsäilytystilat tarjoavat monipuoliset mahdollisuudet raaka-aineiden ja tuotteiden varastointiin, ja erilliset teollisuustilat soveltuvat hyvin erilaisiin valmistus-, käsittely- tai pakkaustoimintoihin. Lisäksi käytettävissä ovat pesu- ja sosiaalitilat sekä wc. Varastotilat täydentävät kokonaisuutta ja helpottavat arjen sujuvuutta.
Rakennus on valmistunut vuonna 1995 ja sijaitsee omalla tontilla. Kiinteistössä vesi tulee omasta kaivosta ja viemäröinti on kunnallinen. Sähkölämmitys & ilmalämpöpumppu sekä sähköinen lattialämmitys. Tieyhteys on perille asti, ja sähkön liittymäkoko (160A) mahdollistaa vaativammankin tuotannon tarpeet.
Kauppaan sisältyy osa kuvissa olevista ammattikeittiökoneista ja -kalusteista, kuten kiinteät kylmiöt ja huuvat sekä astianpesulinjasto.
Kokonaisuutena Paloniementie 61c tarjoaa asiallisen, toimivan ja helposti muokattavan ympäristön yritystoimintaan, jossa tilojen selkeys, tekninen toimivuus ja sijainnin käytännöllisyys ovat keskiössä.
Lari Linden
041 311 7030
linden@vuokravaapeli.fi
