Vuokrataan toimistotilat, liiketilat, tuotantotilat, varastotilat - Jyväskylä
Appiukontie 12, Eteläportti, 40530 Jyväskylä #10852075
Ennakkomarkkinoinnissa U U D I S K O H D E!
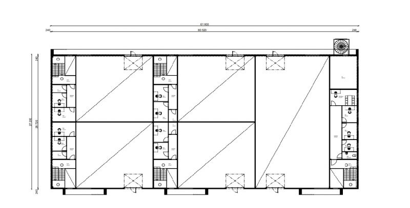
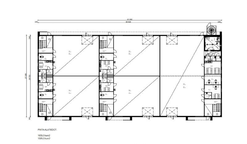
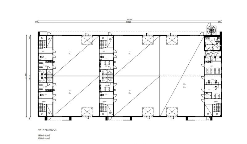
Räätälöidään yritykselle uudet tilat Keljon Eteläporttiin valmistuvasta myymälä-, tuotanto-, varasto- / logistiikkakohteesta. Kohde valmistuu n. 10-12 kuukauden kuluttua aloituksesta. Rakentaminen aloitetaan, kun ankkurivuokralainen on tiedossa.
Syksy 2024 tuo tullessaan uuden mahdollisuuden yrityksellenne – räätälöidyn tuotanto- ja varastotilan, joka täyttää täysin tarpeenne. Ei ole parempaa hetkeä vaikuttaa tilojen suunnitteluun ja varmistaa, että ne vastaavat täydellisesti liiketoimintanne vaatimuksia. Tervetuloa mukaan tähän jännittävään matkaan!
Tuleva Tehotila sijaitsee strategisesti valitussa paikassa, joka tarjoaa ihanteellisen yhdistelmän logistista etua ja saavutettavuutta. Vain lyhyen matkan päässä pääteiltä ja tärkeistä kulkuyhteyksistä. Hyvä Sijainti parantaa toimitusketjun tehokkuutta ja vähentää kustannuksia.
Tilat varustetaan viimeisimmällä teknologialla ja järjestelmillä. Lisäksi ympäristö otetaan huomioon ja rakennuksen vaikutukset ympäristöön pyritään minimoimaan energiatehokkailla ratkaisuilla ja kestävillä materiaaleilla.
Uudiskohde
Katutasossa
Näkyvällä paikalla
Jaettavissa
Aveon Real Estate Oy
Kauppakatu 18 C 26, 40100 Jyväskylä
Henri Kumpulainen
Puh.
Näytä puhelinnumero
040 864 3631
henri.kumpulainen@aveon.fi
Olemme kiinteistöliiketoiminnan asiantuntija, joka toimii yrittäjämäisesti neuvonantajana kiinteistökaupoissa, toimitilavälittämisessä sekä kiinteistökehityksessä.
Asiakkaitamme ovat kotimaiset ja ulkomaiset kiinteistönomistajat, -sijoittajat sekä tilojen käyttäjät kaikkialla Suomessa.
