Vuokrataan toimistotilat - Helsinki
Henry Fordin Katu 6, Hernesaari, 00150 Helsinki #10851956
Persoonallista toimistotilaa Helsingin Hernesaaressa.
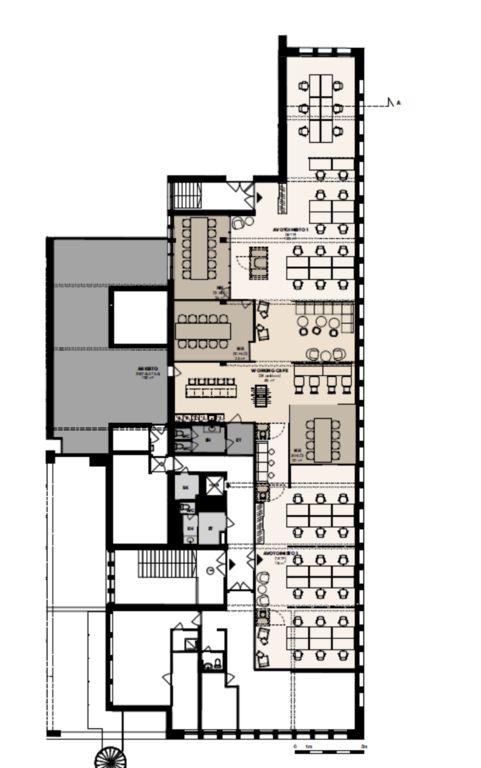
Tämä industrial-henkinen 406 m² toimistotila sijaitsee kiinteistön 3. kerroksessa. Toimistossa on avotilaa, lasiseinillä rajattuja alueita sekä muutama huone. Lisäksi tilaan kuuluvat omat keittiö- ja wc-tilat. Tila soveltuu monenlaiseen toimintaan, esimerkiksi liikuntakäyttöön. Jäähdytystä ei ole, mutta se voidaan asentaa. Tilaa on mahdollista laajentaa vieressä sijaitsevaan 200 m² tornitoimistoon.
Henry Fordin katu 6 eli Henry Fordin talo sijaitsee aivan ydinkeskustan vieressä, merellisessä Hernesaaressa. Kiinteistössä on mm. lounasravintola, padelkentät ja kuntosali. Alueelle on hyvät kulkuyhteydet. Kiinteistön pihalla on runsaasti pysäköintitilaa.
Kysy lisää numerosta 044 723 4700 tai info@bref.fi. Palvelumme on tilanhakijoille ilmainen.
Bureau Real Estate Finland Oy
Lars Sonckin kaari 16, 02600 Espoo
Näytä puhelinnumero
0447234700
Bureau Real Estate Finland Oy
https://www.bref.fi