Vuokrataan toimistotilat - Oulu
Kauppurienkatu 23, Keskusta, 90100 Oulu #10851947
Osoite
Kauppurienkatu 23, 90100 Oulu
Tilatyyppi
Toimistotilaa
84 m2
Muuta
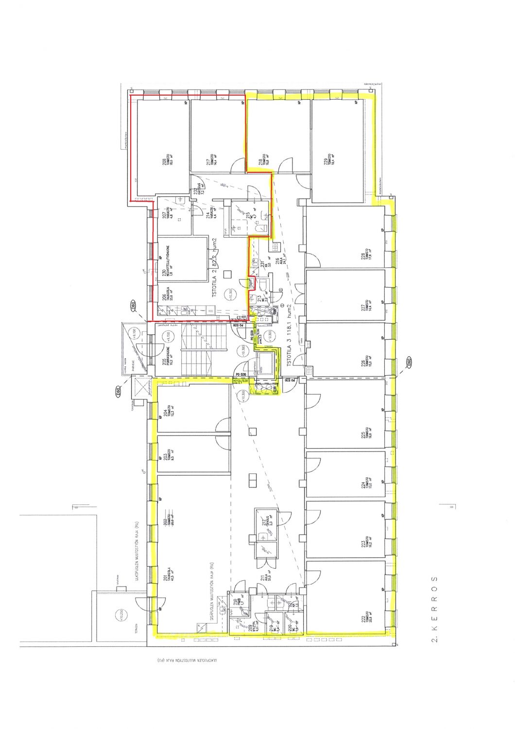
Vuokrataan Kauppurienkatu 23, Oulu 2. krs. 83,7 m2 toimistohuoneisto.
Kiinteistö sijaitsee ihan Kauppakeskus Valkean välittömässä läheisyydessä.
2. kerroksen huoneistossa on 2 työhuonetta, neuvottelu/taukotila, varasto ja wc suihkulla. Vinyylilankkulattiat.
Kiinteistö on peruskorjattu ilmanvaihdon, putkistojen, hissien ja julkisivujen sekä vesikaton osalta 2006.
Rakennuksessa on koneellinen tulo- ja poistoilmanvaihto.
Rakennuksessa on hissi ja esteetön sisäänkäynti sisäpihan puolelta.
Pohjakuvan punainen alue.
Pyydä lisätietoja tästä kohteesta.
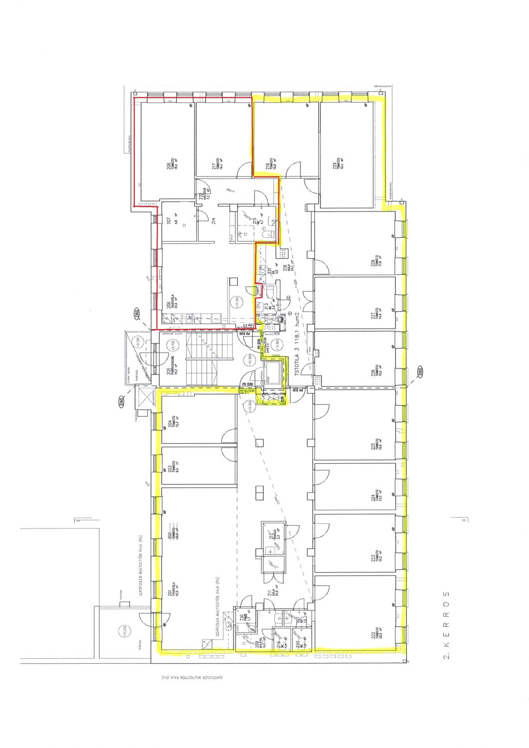
Kiinteistö sijaitsee ihan Kauppakeskus Valkean välittömässä läheisyydessä.
2. kerroksen huoneistossa on 2 työhuonetta, neuvottelu/taukotila, varasto ja wc suihkulla. Vinyylilankkulattiat.
Kiinteistö on peruskorjattu ilmanvaihdon, putkistojen, hissien ja julkisivujen sekä vesikaton osalta 2006.
Rakennuksessa on koneellinen tulo- ja poistoilmanvaihto.
Rakennuksessa on hissi ja esteetön sisäänkäynti sisäpihan puolelta.
Pohjakuvan punainen alue.
Pyydä lisätietoja tästä kohteesta.
Vapautuu
1.6.2026
Kerros
2
Ota yhteyttä
Catella Property Oy
Kirkkokatu 6, 5. krs, 90100 OULU
Näytä puhelinnumero
010 5220 100
Pekka Laurila-Harju
Näytä puhelinnumero
010 5220 603
Pyydä lisätietoa
