Vuokrataan liiketilat - Helsinki
Viides Linja 4, Kallio, 00100 Helsinki #10851935
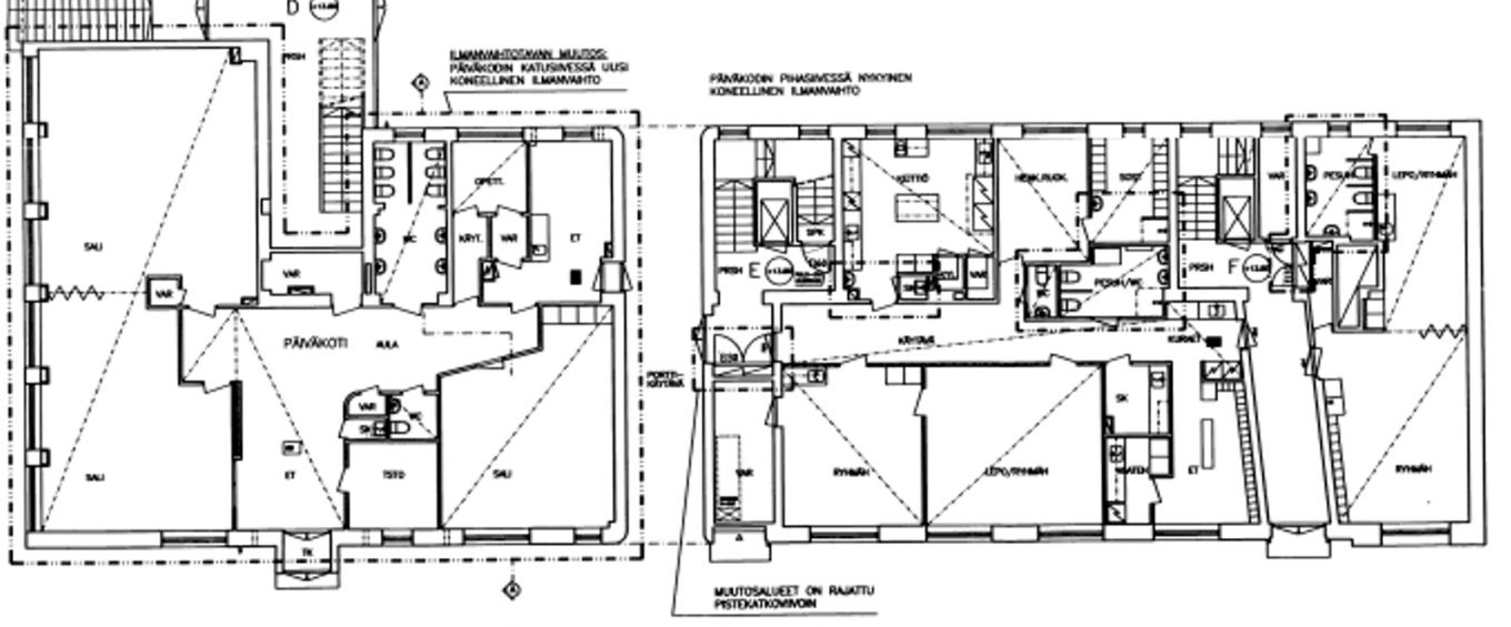
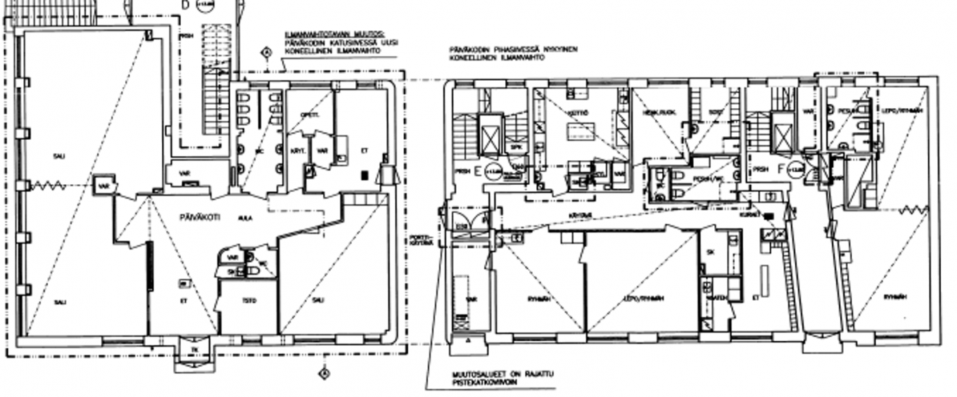
Nyt vuokrattavissa vanha päivä koti. Tilat sopivat kuitenkin laajasti myös eri tarkoituksiin ja tilasta voidaan suunnitella sinun tarpeisiisi sopiva. Tilat sijaitsevat kiinteistön katutasossa ja tiloista löytyy niin valoisaa avotila kuin erillisiä huoneita. Lisäksi tilassa on isot wc-tilat ja suuri keittiö.
Viides linja sijaitsee aivan Kallion sydämessä. Kallio on nykyisin nuoren polven suosima, urbaani ja inspiroiva ympäristö, joka tarjoaa runsaasti kahviloita, ravintoloita ja muita palveluita aivan käden ulottuvilla. Taloyhtiö muodostuu kahdesta rakennuksesta, jotka sijaitsevat vastakkaisilla puolilla Neljättä ja Viidettä linjaa. Molemmat rakennukset on peruskorjattu vuonna 2008. Yhtiössä on sekä asuinhuoneistoja että liiketiloja.
Me Croisettella autamme teitä löytämään teille parhaat tilat! Olemme puolueettomia asiantuntijoita ja tunnemme toimitilamarkkinat, talot sekä tilat vankalla kokemuksella. Meillä on välityksessä kaikki toimitilat ja tiedämme niiden alustavat vuokratasot.
Tehtävämme on tehdä toimitilahaustanne onnistunutta ja helppoa. Saamme palkkiomme kiinteistönomistajalta, joten sinulle palvelumme on täysin maksuton. Jos kiinnostuit, ota yhteyttä!
Croisette Real Estate Partner
Erottajankatu 5 A 6, 00130 Helsinki
Näytä puhelinnumero
+358 400 585 857
Croisette Vuokraus
Näytä puhelinnumero
+358400585857
