Vuokrataan toimistotilat - Helsinki
Pohjoisesplanadi 37, Keskusta, 00100 Helsinki #10851920
Siisti 10,5 m² toimisto arvokiinteistössä Esplanadin varrella.
Osoite
Pohjoisesplanadi 37, 00100 Helsinki
Tilatyyppi
Toimistotilaa
10,5 m2
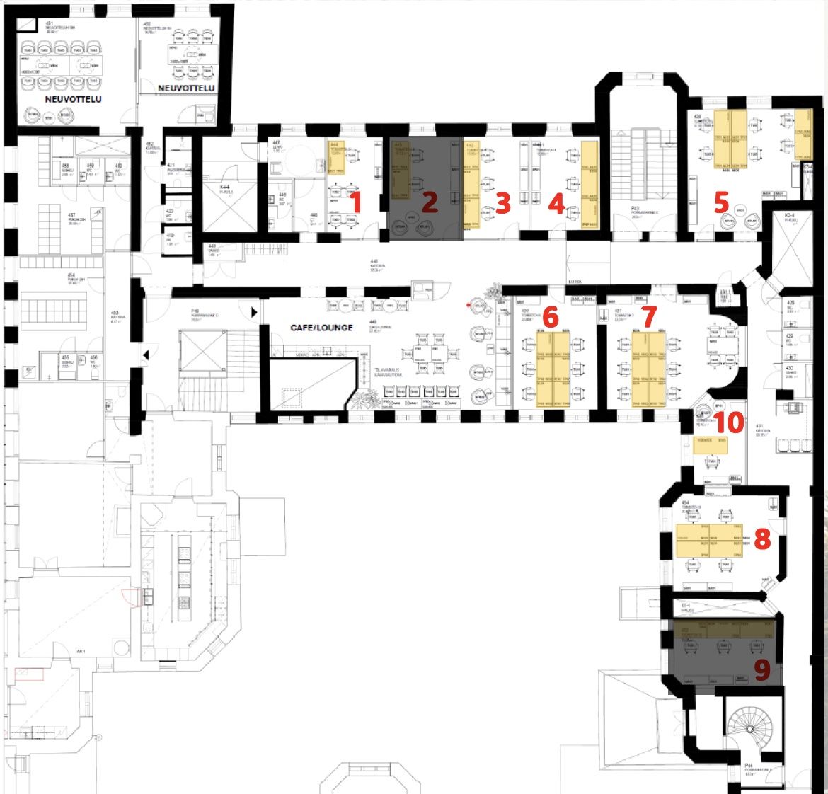
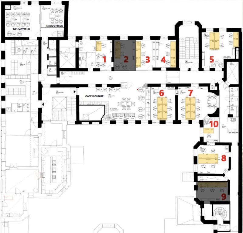
Pohjapiirros
Kiinteistö
4. kerrokseen sisäpihalle rakentuu pientoimistokokonaisuus, josta on vuokrattavissa valmiiksi kalustettuja pientoimistotiloja. Tilojen yhteydessä erikseen vuokrattavaa neuvottelutilaa. Tilaustarjoilut kätevästi alakerran ravintolatoimijoilta.
Vuokra sisältää oman toimistotilan lisäksi:
-WLAN –yhteyden
-Käyttösähkön
-Taukoloungetilan käytön
-Maksuttomat kahvijuomat
-Tilojen viikkosiivouksen
Neuvottelutilat vuokrattavissa tuntihintaan.
Espalla sykkii elämä
Pohjoisesplanadi 37:n sisäpihalle on valmistunut uusi ruokaan keskittyvä ravintolakokonaisuus ja ravintoloiden läpivuotisena terassialueena toimiva kauniisti katettu sisäpiha, jossa on panostettu näyttävään arkkitehtuuriin ja viihtyvyyteen.
Pohjoisesplanadi 37 on haluttu kohde liike-elämän, hallinnon ja kulttuurin kohtauspisteessä Helsingin ydinkeskustassa. Vilkas Esplanadi on parasta mahdollista ympäristöä menestyvälle yritykselle. Kaikki keskusta-alueen monipuoliset palvelut ovat lähettyvillä.
Taidokkaasti saneeratussa arvokiinteistössä on tasokasta liike- ja toimistotilaa, seitsemän kerrosta ja kellaritilat. Tilat ovat jaettavissa toimistomoduulijaon mukaisiin tiloihin, joiden huoneistomuutokset on mahdollista toteuttaa vanhan rakennuksen ehdoin. Talo on saneerattu nykyaikaisen talotekniikan vaatimustason täyttäväksi.
Lähin autoilijoita palveleva pysäköintihalli sijaitsee Kluuvissa, sisäänajo Kaisaniemestä tai Fabianinkadulta. Julkisen liikenteen yhteydet ovat vain lyhyen kävelymatkan päässä.
Vuokra sisältää oman toimistotilan lisäksi:
-WLAN –yhteyden
-Käyttösähkön
-Taukoloungetilan käytön
-Maksuttomat kahvijuomat
-Tilojen viikkosiivouksen
Neuvottelutilat vuokrattavissa tuntihintaan.
Espalla sykkii elämä
Pohjoisesplanadi 37:n sisäpihalle on valmistunut uusi ruokaan keskittyvä ravintolakokonaisuus ja ravintoloiden läpivuotisena terassialueena toimiva kauniisti katettu sisäpiha, jossa on panostettu näyttävään arkkitehtuuriin ja viihtyvyyteen.
Pohjoisesplanadi 37 on haluttu kohde liike-elämän, hallinnon ja kulttuurin kohtauspisteessä Helsingin ydinkeskustassa. Vilkas Esplanadi on parasta mahdollista ympäristöä menestyvälle yritykselle. Kaikki keskusta-alueen monipuoliset palvelut ovat lähettyvillä.
Taidokkaasti saneeratussa arvokiinteistössä on tasokasta liike- ja toimistotilaa, seitsemän kerrosta ja kellaritilat. Tilat ovat jaettavissa toimistomoduulijaon mukaisiin tiloihin, joiden huoneistomuutokset on mahdollista toteuttaa vanhan rakennuksen ehdoin. Talo on saneerattu nykyaikaisen talotekniikan vaatimustason täyttäväksi.
Lähin autoilijoita palveleva pysäköintihalli sijaitsee Kluuvissa, sisäänajo Kaisaniemestä tai Fabianinkadulta. Julkisen liikenteen yhteydet ovat vain lyhyen kävelymatkan päässä.
Vapautuu
Heti
Rakennusvuosi
1920
Kerros
4 / 7
Energiatehokkuusluokka
Ei lain edellyttämää energiatodistusta
Näkyvällä paikalla
Hissi
Ota yhteyttä
ScanReal Oy LKV
Opus Business Park
Hitsaajankatu 24
00810 Helsinki
info@scanreal.fi
Puh:
Näytä puhelinnumero
020 730 8830
Sopivat toimitilat yhdellä otolla!
Kartoitamme toimitilatarpeesi ja etsimme yrityksellesi parhaiten sopivat vapaat toimitilat. Koska vuokranantajat maksavat palvelumme, on tämä yrityksellesi veloituksetonta.
OTA YHTEYTTÄ - SOVI NÄYTTÖ!
Kaikki kohteemme eivät ole netissä, kerro tilatarpeesi niin kartoitamme vaihtoehdot.
Palvelumme on tilanhakijalle ilmainen
Pyydä lisätietoa
