Vuokrataan/sijoituskohde varastotilat - Porvoo
KOY Tarmolan Talliosake tila 17 – parvi, wc, ilmalämpöpumppu, lisäpistorasioita, Oppipojantie 4, 06150 Porvoo #10851909
Suositulta Tarmolan Talliosakkeelta monikäyttöinen varasto, autotalli, harraste-, toimitila 17. Tilassa parvi ja wc, ilmalämpöpumppu sekä lisäpistorasioita.
Osoite
Oppipojantie 4, 06150 Porvoo
Tilatyyppi
Varastotilaa
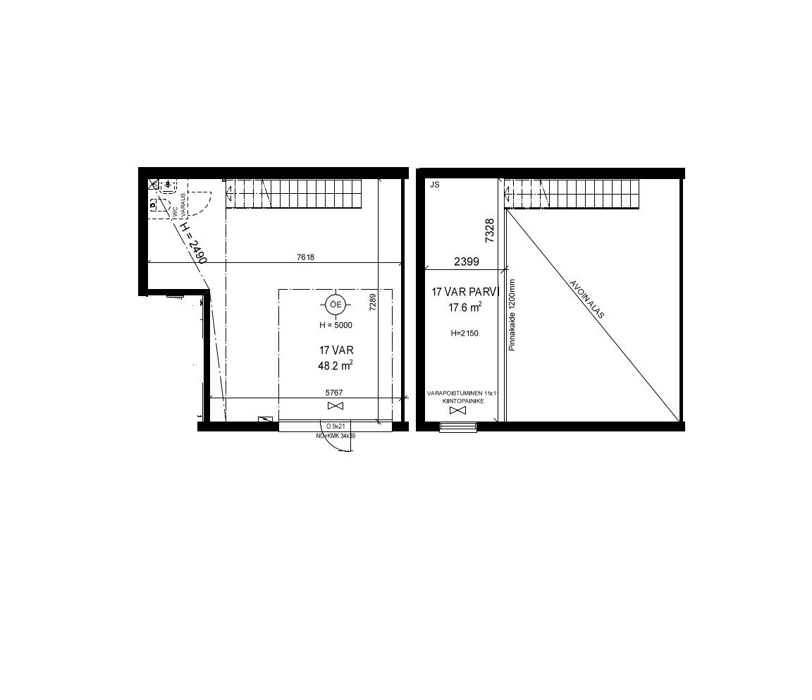
66 m2
Vuokra
725 € / kk
Kiinteistö
KOY Tarmolan Talliosake
Sijainti
Tarmolan Talliosake sijaitsee Porvoon pohjoispuolella Tarmolan kaupunginosassa, aivan Porvoon keskusta-alueen tuntumassa. Ajoaika keskustaan noin 3 minuuttia ja vain muutaman minuutin ajomatkan päässä myös liittymä moottoritielle (E18), jonka kautta nopeat yhteydet itään sekä länteen.
Muuta
Vuokrataan vain yritysasiakkaille – vuokraan lisätään ALV 25,5%.
Moottoroitu nosto-ovi erillisellä käyntiovella. Autolla sisään ajettava tila. Tilan lattiapinta-ala on 48 m² ja parven 18 m². Yhteispinta-ala 66 m². Tilamitat: 7,28 (Pituus) 7,61 (Leveys) 5,00 (Korkeus). Ovimitat: 3,40 (Leveys) 3,90 (Korkeus).
Käyttötarkoitusesimerkkejä: - toimitila - varastotila - yrityksen työtarvikevarasto / kalustovarasto - kimppatalli - harrastetila - bändikämppä - autotalli - moottoripyörätalli - mönkijätalli. Tila ei sovellu autokorjaamoksi eikä autopesulaksi.
Tila on sähkölämmitteinen. Vuokralainen tekee tilaan oman sähkösopimuksen. Vesi- ja sähkömaksu kulutuksen mukaan. Vakuus kahden kuukauden vuokraa vastaava määrä. Haetaan pitkäaikaista vuokralaista. Luottotiedot tarkistetaan.
Talliosake tuottaa joustavasti muunneltavia hallitiloja ympäri Suomen, joita yritykset ja yksityishenkilöt käyttävät tukikohtinaan erilaisille toiminnoille: yritys- ja liiketoimintaan, varastointiin sekä harrastuksiin.
Moottoroitu nosto-ovi erillisellä käyntiovella. Autolla sisään ajettava tila. Tilan lattiapinta-ala on 48 m² ja parven 18 m². Yhteispinta-ala 66 m². Tilamitat: 7,28 (Pituus) 7,61 (Leveys) 5,00 (Korkeus). Ovimitat: 3,40 (Leveys) 3,90 (Korkeus).
Käyttötarkoitusesimerkkejä: - toimitila - varastotila - yrityksen työtarvikevarasto / kalustovarasto - kimppatalli - harrastetila - bändikämppä - autotalli - moottoripyörätalli - mönkijätalli. Tila ei sovellu autokorjaamoksi eikä autopesulaksi.
Tila on sähkölämmitteinen. Vuokralainen tekee tilaan oman sähkösopimuksen. Vesi- ja sähkömaksu kulutuksen mukaan. Vakuus kahden kuukauden vuokraa vastaava määrä. Haetaan pitkäaikaista vuokralaista. Luottotiedot tarkistetaan.
Talliosake tuottaa joustavasti muunneltavia hallitiloja ympäri Suomen, joita yritykset ja yksityishenkilöt käyttävät tukikohtinaan erilaisille toiminnoille: yritys- ja liiketoimintaan, varastointiin sekä harrastuksiin.
Vapautuu
01.02.2026
Katutasossa
Ota yhteyttä
Talliosake Oy
Jani Sanevuori
Aluemyyntipäällikkö,
Etelä-Suomi, Vuokrauspalvelu, LVV
Näytä puhelinnumero
050 361 4814
Pyydä lisätietoa
