Vuokrataan toimistotilat - Helsinki
Lautatarhankatu 6, Kalasatama, 00580 Helsinki #10851906
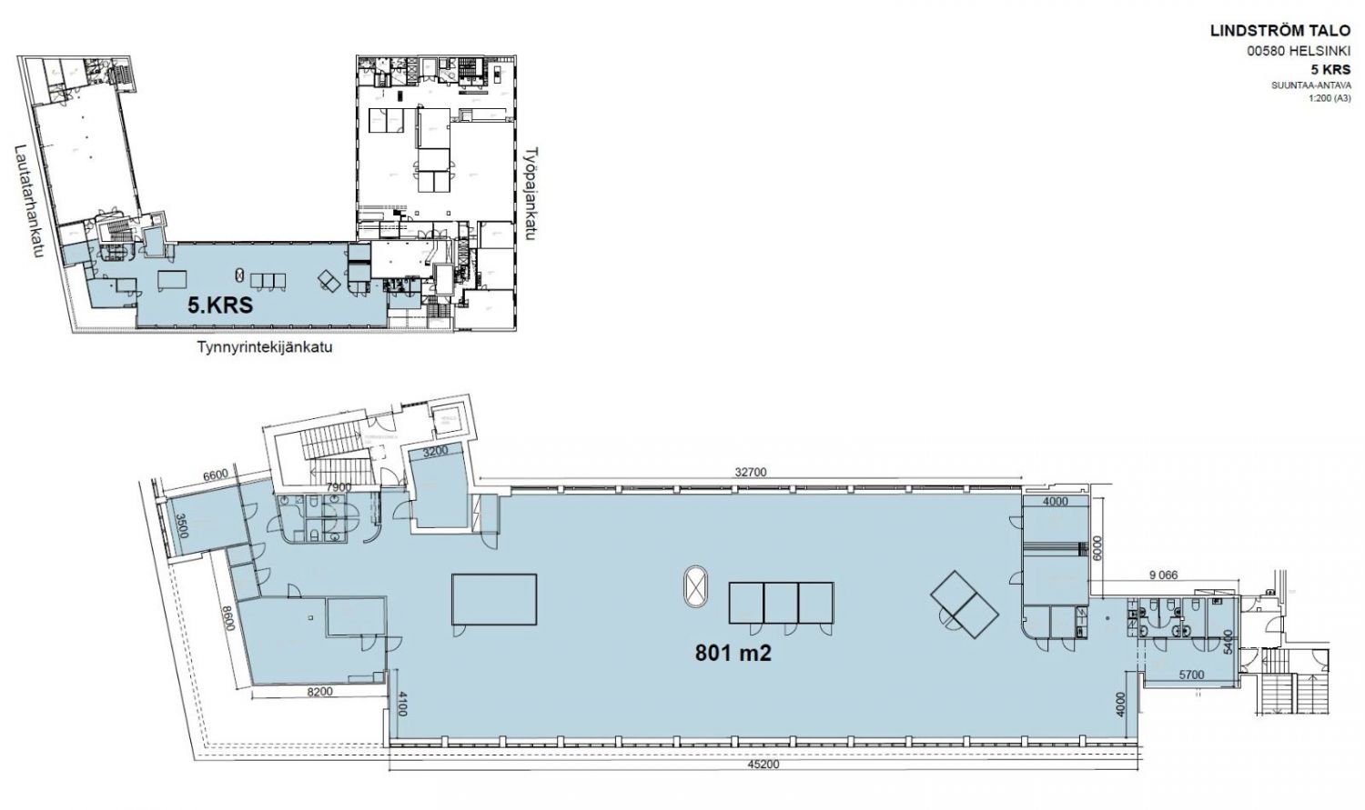
Vuokrataan ylimmän kerroksen jäähdytetty 801 m² toimistotila Kalasatamasta. Tämä kaarevakattoinen avotila on varustettu muutamilla huoneilla sekä vetäytymistiloilla.
Lindström Talo on business parkiksi muutettu punatiilinen teollisuuskiinteistö Kalasataman ytimessä, jonka suuret ikkunat sekä avarat ja valoisat tilat luovat ainutlaatuisen tunnelman. Talossa on monipuoliset palvelut ja hyvä sijainti Kalasataman kehittyvällä alueella, metro ja REDI ovat kävelymatkan päässä.
Kiinteistön aula-, ravintola- ja neuvottelutilat on uudistettu syksyllä 2024. Uudistus tehtiin vastuullisesti hiilijalanjälkeä seuraten, materiaaleja kierrättäen, toiminnallisuutta korostaen sekä uutta luoden! Talon pitkä historia näkyy tyylikkäinä yksityiskohtina.
Lindström Taloon on helppo saapua niin julkisilla kulkuvälineillä kuin omalla autollakin. Talon palvelut on suunniteltu helpottamaan arkea: parkkitilaa pyörille ja autoille piisaa, maukasta lounasta on tarjolla joka päivä ja avuliaalla aulapalveluhenkilöstöllä on ratkaisu tilanteeseen kuin tilanteeseen. Jos kuitenkin kaipaa maisemanvaihtoa lounasaikaan, löytyy vierestä särmikäs Teurastamon alue sekä Suomen monipuolisin kaupunkikeskus Redi. Myös meri ja Mustikkamaan rannat ovat aivan kulman takana.
Kysy lisätietoja tai sovitaan käynti kohteelle jo tänään!
Hausala Oy
Erkkilänkatu 11, 33100 Tampere
Näytä puhelinnumero
050 472 7077
Mika Savikko
Näytä puhelinnumero
050 472 7077
Mikko Ranta
Näytä puhelinnumero
050 360 6500
