Vuokrataan toimistotilat - Helsinki
Itämerentori 2, Ruoholahti, 00180 Helsinki #10851855
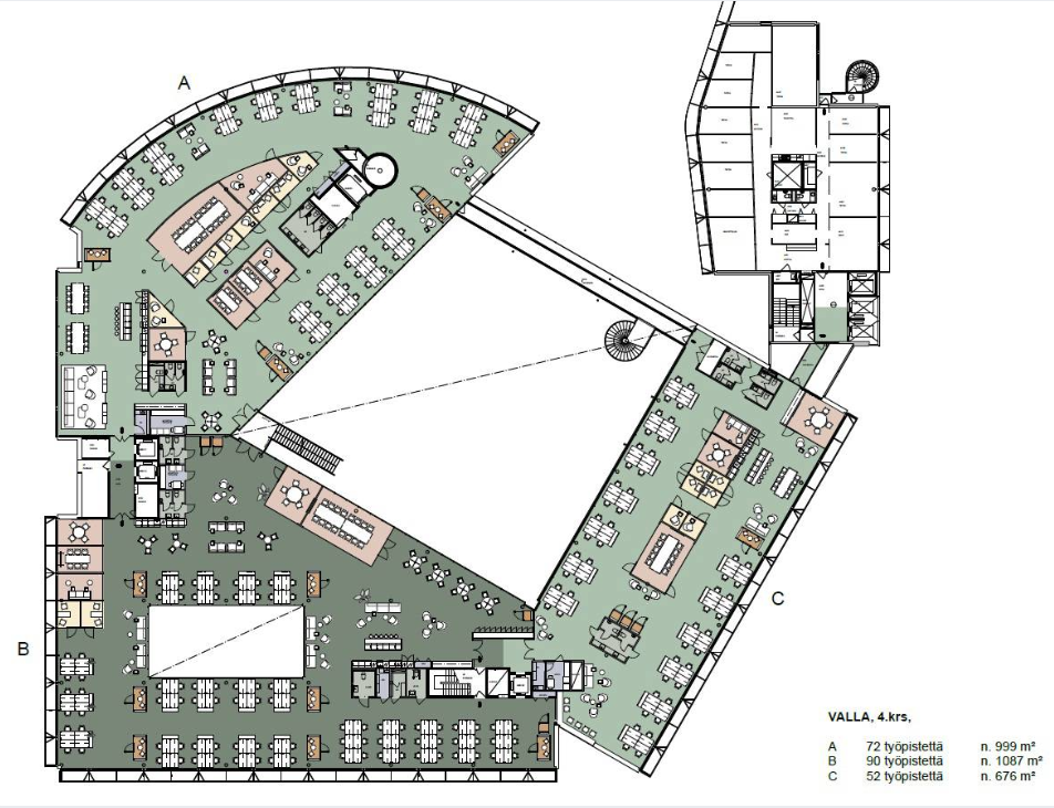
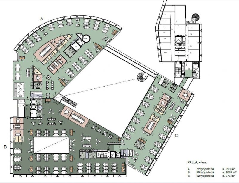
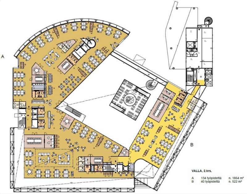
Helsingin Ruoholahdessa sijaitseva Valla tarjoaa muunneltavaa toimitilaa erikokoisille yrityksille. Vapaana Atruimin tilat 2.-5. kerroksessa á n. 2800 m2 jaettavissa useaan eri kokoluokkaan sekä Tornin kerrokset 4., 8-10. sekä 14. á 380 m2 jaettavissa 256 m2/124 m2. Talossa on huippuluokan auditorio, aulapalvelu, ravintola- ja cateringpalvelut, moderni neuvottelukeskus, sauna-/edustustilat talon ylimmässä kerroksessa, kuntosali, ym. Kiinteistön tilat tarjoavat erinomaiset puitteet kohtaamiseen ja keskittymiseen. Vallan Atrium ja Torni pitävät sisällään tilat, joissa yritys- ja työhyvinvointi kasvavat ja kehittyvät. Ota yhteyttä ja sovi esittely, vuokrauspalvelumme on tilanhakijoille maksuton.
Näkyvällä paikalla
Hissi
Senaatin Notariaatti Oy LKV
Lämmittäjänkatu 4 A
FIN-00880 Helsinki
Tel:
Näytä puhelinnumero
+358 9 7745 100
