Vuokrataan toimistotilat, varastotilat - Helsinki
Työpajankatu 10, Kalasatama, 00580 Helsinki #10851832
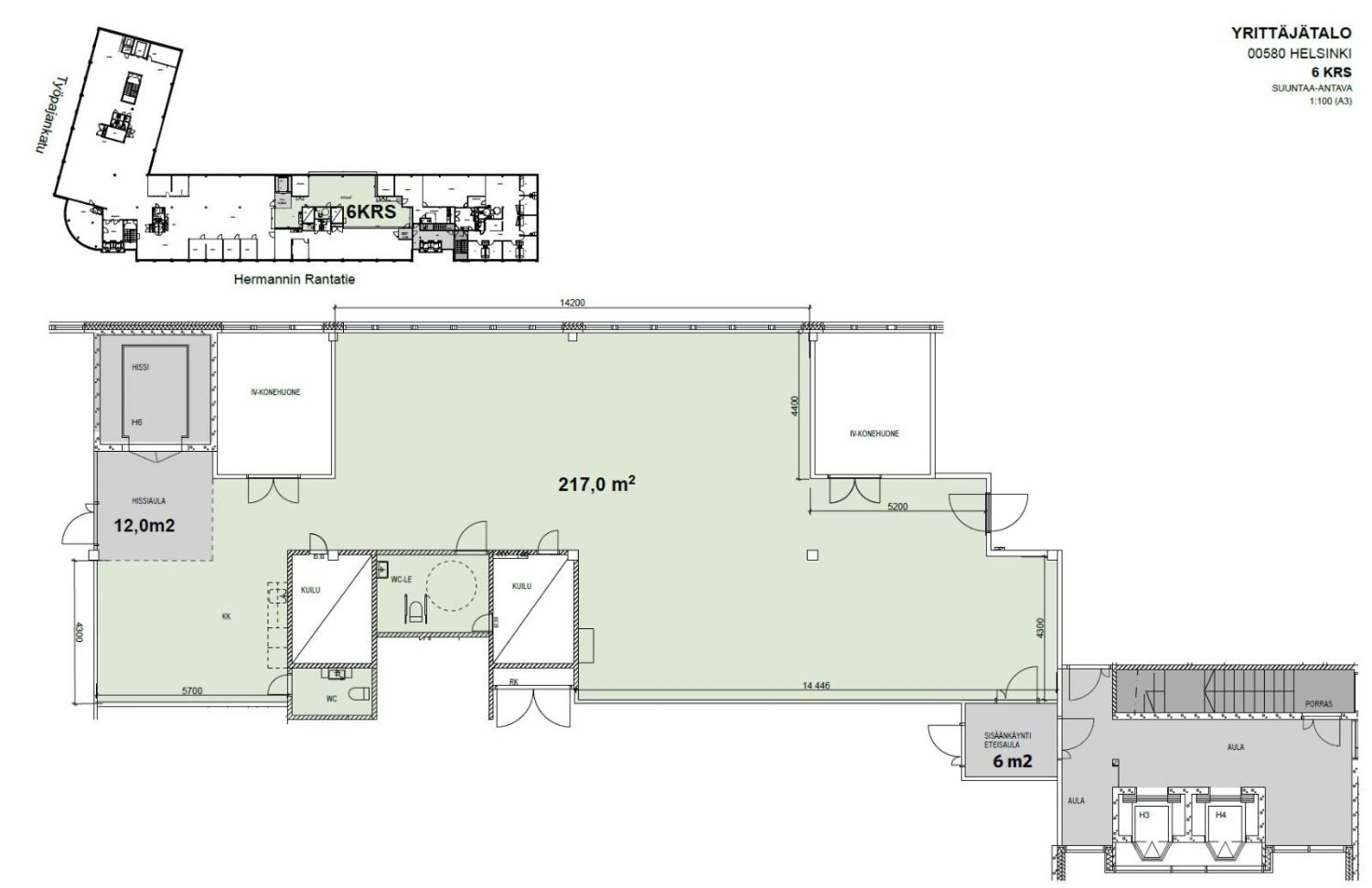
Vuokrataan kuudennen kerroksen 224 m² toimitila Kalasatamasta. Tämä toimitila koostuu avotilasta, keittiöstä sekä wc- tiloista. Tilassa on uusittu valaistus ja wc:t. Keittiö, lattiamateriaalit sekä mahdolliset huoneet rakennetaan asiakkaan toiveiden mukaan! Tilaan tulee tavarahissi ja toimii varastona nykyisessä kunnossaan.
Helsingin Yrittäjätalo sijaitsee hyvien kulkuyhteyksien varrella keskustan läheisyydessä, Kalasataman metroasemaa vastapäätä. Toimitilat rakennetaan laadukkailla ratkaisuilla ja asiakaskohtaiset tilatarpeet huomioiden. Tiloissa on uniikkeja yksityiskohtia kuten esimerkiksi kahden kerroksen korkuinen näyttävä aulatila sekä kaareva lasikulma.
Kattavat ravintolapalvelut ja neuvottelutilat löytyvät läheisestä Rantatie Business Parkista sekä Lindström Talosta ja Kalasataman Kummelista.
Kysy lisätietoja tai sovitaan käynti kohteelle jo tänään!
Hissi
Hausala Oy
Erkkilänkatu 11, 33100 Tampere
Näytä puhelinnumero
050 472 7077
Mika Savikko
Näytä puhelinnumero
050 472 7077
Mikko Ranta
Näytä puhelinnumero
050 360 6500
