Vuokrataan toimistotilat, varastotilat - Helsinki
Työpajankatu 10, Kalasatama, 00580 Helsinki #10851831
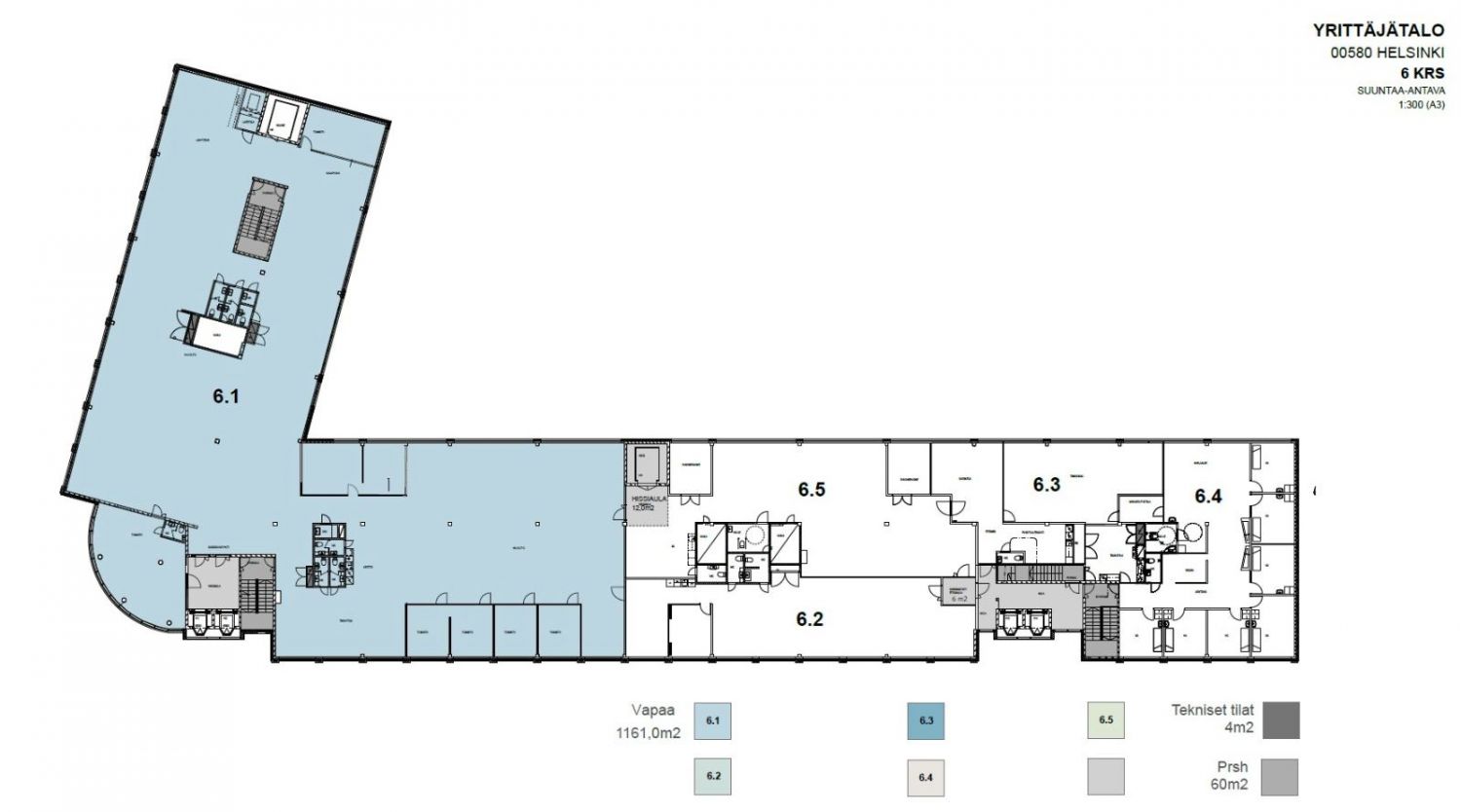
Vuokrataan kuudennen kerroksen 1161 m² toimitila Kalasatamasta. Soveltuu toimisto, showroom tai varastotilaksi. Paljon avotilaa ja muutamia huoneita. Korkeaa tilaa n. 60m2 alueelta sisääntulon edessä. Tilassa on epoksimaalattu lattia, uusittu valaistus ja wc:t. Tilassa on myös keittiö sekä tilaan tulee tavarahissi
Helsingin Yrittäjätalo sijaitsee hyvien kulkuyhteyksien varrella keskustan läheisyydessä, Kalasataman metroasemaa vastapäätä. Toimitilat rakennetaan laadukkailla ratkaisuilla ja asiakaskohtaiset tilatarpeet huomioiden. Tiloissa on uniikkeja yksityiskohtia kuten esimerkiksi kahden kerroksen korkuinen näyttävä aulatila sekä kaareva lasikulma.
Kattavat ravintolapalvelut ja neuvottelutilat löytyvät läheisestä Rantatie Business Parkista sekä Lindström Talosta ja Kalasataman Kummelista.
Kysy lisätietoja tai sovitaan käynti kohteelle jo tänään!
Hausala Oy
Erkkilänkatu 11, 33100 Tampere
Näytä puhelinnumero
050 472 7077
Mika Savikko
Näytä puhelinnumero
050 472 7077
Mikko Ranta
Näytä puhelinnumero
050 360 6500
