Vuokrataan toimistotilat, liiketilat - Helsinki
Salmisaarenaukio 1, Salmisaari, 00180 Helsinki #10851830
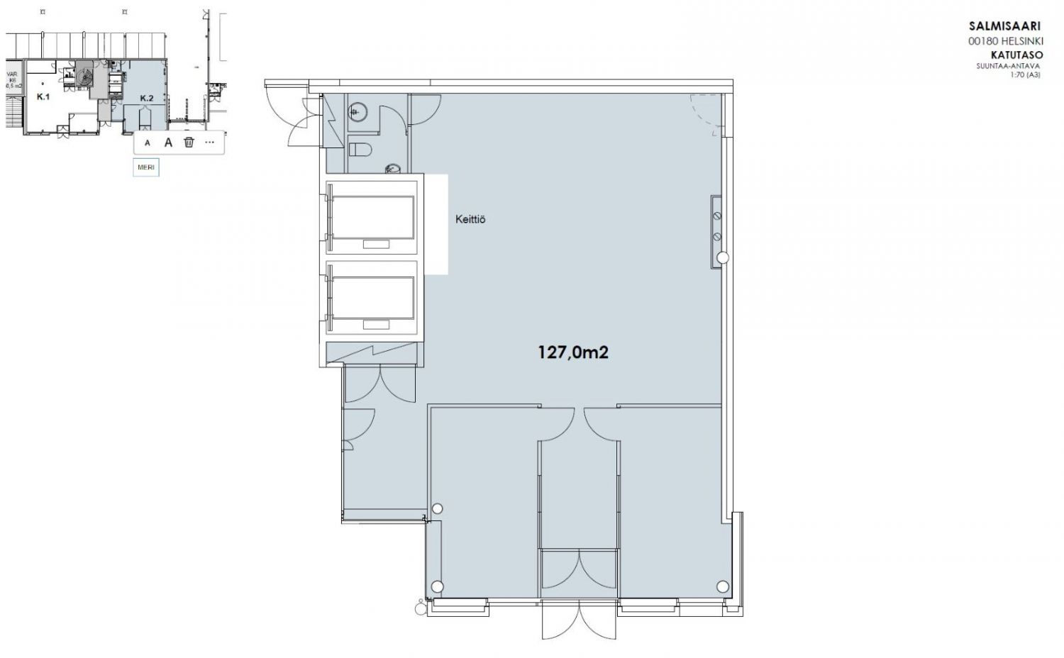
Vuokrataan katutason muuttovalmis 127m² liiketila/toimisto Salmisaaresta. Tilaan on oma sisäänkäynti Salmisaarenrannan puolella, tämä mahdollistaa tilan käytettävyyden niin toimistona,liiketilana tai showroomina. Tilassa on pari huonetta ja avotilaa, keittiö ja wc:t. Tämä merinäkymin oleva tila on äskettäin remontoitu.
Helsingin Salmisaarenaukio 1 on edustava pääkonttoritasoinen v.2007 rakennettu kohde, jossa on hyvät liiketoiminannan tukipalvelut mm. aulapalvelu, lounasravintola ja neuvottelutiloja. Kohteen sijanti on sujuva; lähin bussipysäkki ja kaupunkipyöräasema sijaitsevat talon edessä.
Kysy lisätietoja tai sovitaan käynti kohteelle jo tänään!
Katutasossa
Hausala Oy
Erkkilänkatu 11, 33100 Tampere
Näytä puhelinnumero
050 472 7077
Mika Savikko
Näytä puhelinnumero
050 472 7077
Mikko Ranta
Näytä puhelinnumero
050 360 6500
