Vuokrataan toimistotilat - Helsinki
Salmisaarenaukio 1, Salmisaari, 00180 Helsinki #10851828
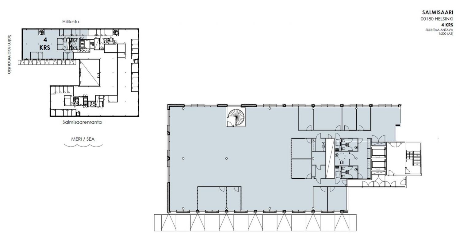
Vuokrataan neljännen kerroksen 658 m² toimistotila Salmisaaresta. Tämä pääkonttoritasoinen toimistotila kattaa koko kerroksen. Tilasta on upeat merinäköalat!
Tilan huonekorkeus on noin neljä metriä ja ikkunat ulottuvat lattiasta kattoon. Huonejako on helposti muokattavissa asiakkaan toiveiden mukaiseksi.
Helsingin Salmisaarenaukio 1 on edustava pääkonttoritasoinen v.2007 rakennettu kohde, jossa on hyvät liiketoiminannan tukipalvelut mm. aulapalvelu, lounasravintola ja neuvottelutiloja. Kohteen sijanti on sujuva; lähin bussipysäkki ja kaupunkipyöräasema sijaitsevat talon edessä.
Kysy lisätietoja tai sovitaan käynti kohteelle jo tänään!
Näkyvällä paikalla
Hausala Oy
Erkkilänkatu 11, 33100 Tampere
Näytä puhelinnumero
050 472 7077
Mika Savikko
Näytä puhelinnumero
050 472 7077
Mikko Ranta
Näytä puhelinnumero
050 360 6500
