Vuokrataan varastotilat - Kerava
KOY Keravan Talliosake 4 tila 5 – parvi, wc, Saviontie 20, 04260 Kerava #10851826
Keravan Talliosakkeelta monikäyttöinen varasto, autotalli, harraste-, toimitila 5. Tilassa jo valmiina parvi sekä wc.
Osoite
Saviontie 20, 04260 Kerava
Tilatyyppi
Varastotilaa
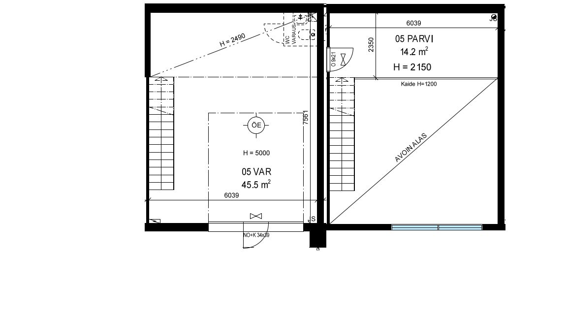
60 m2
Vuokra
700 € / kk
Kiinteistö
KOY Keravan Talliosake 4
Sijainti
Keravan Talliosake 4 sijaitsee Keravan eteläpuolella, Ali-Keravan teollisuuspainotteisessa kaupunginosassa, aivan Kerava – Helsinki -junaradan varrella, vain 3 minuutin ajomatkan päässä Keravan keskustasta. Viidessä minuutissa olet jo Lahden moottoritiellä (E75).
Muuta
Vuokrataan vain yritysasiakkaille – vuokraan lisätään ALV 25,5%.
Tilan lattiapinta-ala on 46 m² ja parven 14 m². Yhteispinta-ala 60 m². Moottoroitu nosto-ovi erillisellä käyntiovella. Autolla sisään ajettava tila. Tilamitat: 7,55 (Pituus)
6,00 (Leveys) 5,00 (Korkeus). Ovimitat: 3,40 (Leveys) 3,90 (Korkeus)
Käyttötarkoitusesimerkkejä: - toimitila - varastotila - yrityksen työtarvikevarasto / kalustovarasto - kimppatalli - harrastetila - bändikämppä - autotalli - moottoripyörätalli - mönkijätalli. Tila ei sovellu autokorjaamoksi eikä autopesulaksi.
Tila on sähkölämmitteinen. Vuokralainen tekee tilaan oman sähkösopimuksen. Vesi- ja sähkömaksu kulutuksen mukaan. Vakuus kahden kuukauden vuokraa vastaava määrä. Haetaan pitkäaikaista vuokralaista. Luottotiedot tarkistetaan.
Talliosake tuottaa joustavasti muunneltavia hallitiloja ympäri Suomen, joita yritykset ja yksityishenkilöt käyttävät tukikohtinaan erilaisille toiminnoille: yritys- ja liiketoimintaan, varastointiin sekä harrastuksiin.
Tilan lattiapinta-ala on 46 m² ja parven 14 m². Yhteispinta-ala 60 m². Moottoroitu nosto-ovi erillisellä käyntiovella. Autolla sisään ajettava tila. Tilamitat: 7,55 (Pituus)
6,00 (Leveys) 5,00 (Korkeus). Ovimitat: 3,40 (Leveys) 3,90 (Korkeus)
Käyttötarkoitusesimerkkejä: - toimitila - varastotila - yrityksen työtarvikevarasto / kalustovarasto - kimppatalli - harrastetila - bändikämppä - autotalli - moottoripyörätalli - mönkijätalli. Tila ei sovellu autokorjaamoksi eikä autopesulaksi.
Tila on sähkölämmitteinen. Vuokralainen tekee tilaan oman sähkösopimuksen. Vesi- ja sähkömaksu kulutuksen mukaan. Vakuus kahden kuukauden vuokraa vastaava määrä. Haetaan pitkäaikaista vuokralaista. Luottotiedot tarkistetaan.
Talliosake tuottaa joustavasti muunneltavia hallitiloja ympäri Suomen, joita yritykset ja yksityishenkilöt käyttävät tukikohtinaan erilaisille toiminnoille: yritys- ja liiketoimintaan, varastointiin sekä harrastuksiin.
Vapautuu
Heti vapaa
Katutasossa
Näkyvällä paikalla
Ota yhteyttä
Talliosake Oy
Jani Sanevuori
Aluemyyntipäällikkö,
Etelä-Suomi, Vuokrauspalvelu, LVV
Näytä puhelinnumero
050 361 4814
Pyydä lisätietoa
