Vuokrataan toimistotilat - Jyväskylä
Vapaudenkatu 48-50, Keskusta, 40100 Jyväskylä #10851800
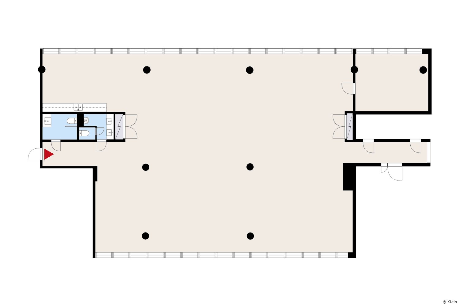
Viihtyisää ja muunneltavaa toimitilaa Jyväskylän ydinkeskustassa.
Loistavalla sijainnilla aivan eläväisen keskustan palveluiden äärellä tarjolla toimitilaa, joka muokkautuu joustavasti omien tarpeiden mukaan. Tilaan on mahdollista toteuttaa avotoimistoa, erillisiä huoneita tai näiden yhdistelmä. Tilaan saatavilla omat keittiö-, lounge- ja sosiaalitilat.
Kiinteistössä käytetään 100 % vihreää sähköä ja kaukolämpöä. Vuokralaisten käytössä Kielon asiantunteva asiakaspalvelun sekä monipuoliset asiakasedut. Valmiina on myös turvallisuus-, huolto- ja siivouspalvelut. Lisäksi muista Kielon kohteista on mahdollista vuokrata kokous- ja saunatiloja edullisesti.
Kiinteistön alla sijaitsevasta pysäköintihallista voi vuokrata autopaikkoja ja pyöräilijöille on tarjolla lukittu pyöräparkki.
Tilat ovat osa tilanjakoprojektia ja ne valmistuvat keväällä 2026. Tilakoko on viitteellinen.
Kielo
Minna Hämäläinen
Näytä puhelinnumero
040 564 8042
Katja Kröger
Näytä puhelinnumero
050 512 7707
Meiju Karvonen
Näytä puhelinnumero
050 431 8812
Tarjoamme toimi-, kokous- ja saunatiloja niin isoille kuin pienillekin yrityksille!
https://kielotoimitilat.fi/