Vuokrataan liiketilat - Pori
Herralahdenraitti 1, 28130 Pori #10851790
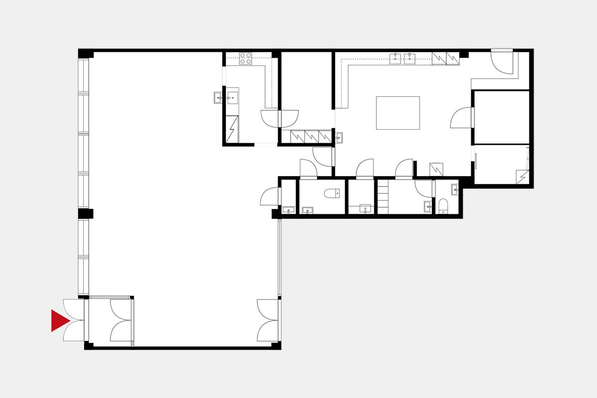
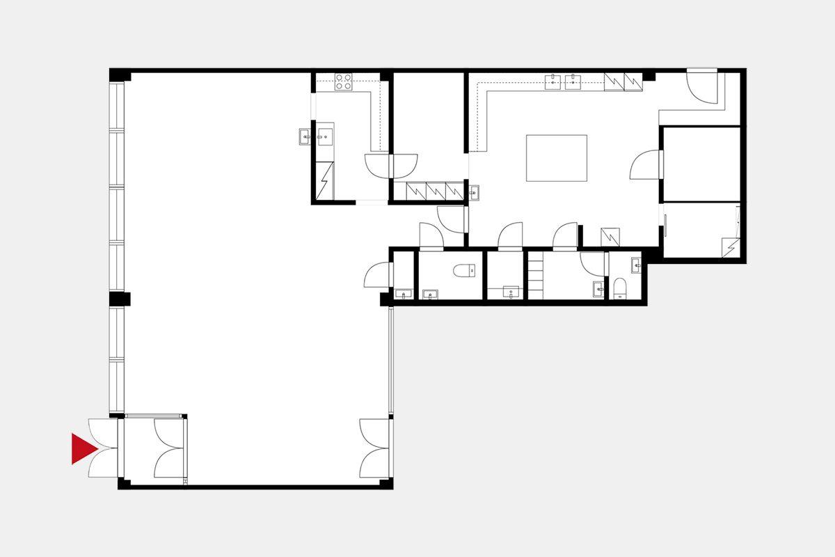
Vuokrattavana katutason liiketila Herralahdessa, Porin Askokylän alueella. Monikäyttöinen tila soveltuu erinomaisesti esimerkiksi myymäläksi, kahvilaksi tai ravintolaksi. Tila on aiemmin toiminut lounasravintolana, joten se on valmiiksi varusteltu ravintola- ja kahvilatoimintaan. Asiakaspaikkoja on noin 25 hengelle.
Liiketilan kokonaisuus sisältää asiakastilan, keittiön, kylmiön, toimistohuoneen, sosiaalitilat, wc:n ja siivouskomeron. Tilan kunto on uutta vastaava.
Lisätietoja 020 7290 710 ja lisää kohteita premises.fi
Energialuokka B (2018).Kerros: katutaso
CRE PREMISES
Puh. Näytä puhelinnumero 020 7290 710
Vantaankoskentie 14
01670 VANTAA
