Vuokrataan liiketilat - Salo
Valtatie 5, Salo #10851741
Salon Retail Park on pääasiassa kotiin, rakentamiseen ja sisustukseen keskittyvä uusi kaupan keskittymä Salossa. Sijainti on 110-tien varressa, Prisman ja ABC-aseman vieressä. Kohteen kokonaispinta-ala on n. 20.000 m2. Kiinteistö on valmistunut vuosien 2008-2009 aikana. Pysäköintipaikkoja on runsaasti, n. 500 suoraan liikkeiden edustalla.
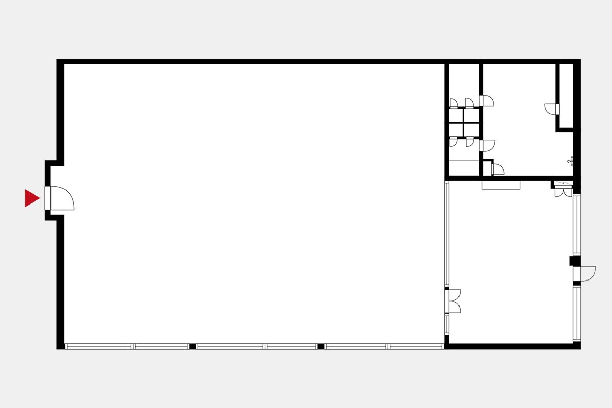
Tässä liikekeskuksessa on vuokrattavana myymäläkokonaisuus C, jonka pinta-ala on n. 1200 m2. Myymälä soveltuu erinomaisesti tilaa vievälle kaupalle. Tila on suorakaiteen muotoinen ja sen toisessa päädyssä on lastauslaituri ja varasto. Samassa yhteydessä on käynti sosiaalitiloihin. Myymälän vapaa korkeus on 3,8 m perällä. Myymälä rakennetaan perustasoon. Liikehuoneiston naapureina toimivat mm. Gigantti, Jysk ja kohteen ankkureina taas Tarjoustalo ja Kodin Terra.
Lisätietoja numerosta 020 7290 710. Lisää kohteita osoitteessa premises.fi.
Kohteella ei ole lain edellyttämää energiatodistusta.Kerros: katutaso
Liitetiedostot
CRE PREMISES
Puh. Näytä puhelinnumero 020 7290 710
Vantaankoskentie 14
01670 VANTAA
